Oglas StanoviNiš-7426

Jednoiposoban stan na prodaju, 32m2, 79.800€

Šifra oglasa: StanoviNiš-7426
Niš, Medijana
Jednoiposoban stan u modernoj novogradnji sa povraćajem PDV-a, na lepoj lokaciji u blizini keja ID#StanoviNiš-7426

79.800 €

2.493,75 €/m2

Klikni da pozoveš ili pošalješ poruku
Kontakt telefon
018 310 52 67

Kliknite i ostavite kontakt kako biste saznali kako ovaj stan možete kupiti uz pomoć stambenog kredita:

Cena:
Šifra oglasa:
Kvadratura:
Tip objekta:
Stanje objekta:
Struktura:
Sprat:
Način grejanja:
Uknjiženost:
Dodatno:
79.800 €
StanoviNiš-7426
32 m2
Stan
Izvorno
1.5
1
Etažno
Uknjiženo
Lift
Oglas ažuriran: 25.11.2025 (14:44)
Oglas proveren: 10.12.2025 (13:25)

Opis oglasa:
Šifra oglasa:
StanoviNiš-7426
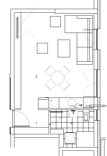
U ponudi je jednoiposoban stan koji se nalazi u novom stambenom objektu spratnosti Po1+Po2+P+5 na lepoj lokaciji u blizini keja. Površine je 31,92m2, nalazi se na I spratu stambene zgrade sa liftom. Sastoji se iz ulaznog hodnika, dnevnog boravka, spavaće sobe (koja je pregrađena), kupatila i terase. Stanovi su projektovani tako da kupcima pružaju ugodnost i udobnost stanovanja. Poseban akcenat je na poštovanju najnovijih zahteva energetske efikasnosti što će Vam pružiti mogućnost luksuznog stanovanja uz minimalne troškove. U gradnji se koriste najkvalitetniji materijali: fasadni zidovi višeslojni od giter blokova debljine 20cm, na podovima će biti postavljen parket I klase, dok će u kuhinji i kupatilu biti postavljena granitna keramika, unutrašnja vrata biće od furniranog medijapaana, stolarija će biti PVC profila, grejanje će biti etažno. Krov će biti ravni sa zelenom površinom. Uz stan se dobija ostava a postoji mogućnost kupovine i parking mesta. Sama lokacija objekta će Vam pružiti sve što Vam je potrebno za miran, kvalitetan i komforan porodičan život. U cenu je uključen PDV i kupci prvog stana imaju pravo na povraćaj PDV-a u iznosu od 10%. Za više informacija o ovoj ili drugim nekretninama i zakazivanje razgledanja kontaktirajte agenta na broj telefona iz oglasa (poziv, sms, viber) ili putem e-maila. Kompletnu ponudu dostupnih nekretnina možete pronaći na našem sajtu. Agencija Proagent nekretnine je upisana u Registru posrednika pod brojem: 940.
Kontakt: 018 310 52 67
Klikni da pozoveš ili pošalješ poruku
Kontakt telefon
018 310 52 67
Prijavi grešku u oglasu
Zakaži gledanje stana
Zakaži gledanje stana
Pitaj oglašivača
Selektuj šta te interesuje:
Pošalji pitanje

Podeli stan sa prijateljima
Kopiraj link

Kontaktiraj oglašivača
Proagent nekretnine - profilna slika
Proagent nekretnine


Slični oglasi: