Oglas StanoviNiš-p-015647

Knjaževačka, Četvorosoban stan na prodaju, 115m2, 253.000€

Šifra oglasa: StanoviNiš-p-015647
Niš, Pantelej, Durlan - Knjaževačka
Stan u zgradi, novogradnja, etažno grejanje, oglas ID StanoviNiš-p-015647

253.000 €

2.200,00 €/m2

Klikni da pozoveš ili pošalješ poruku
Kontakt telefon
018 310 61 53

Kliknite i ostavite kontakt kako biste saznali kako ovaj stan možete kupiti uz pomoć stambenog kredita:

Cena:
Šifra oglasa:
Kvadratura:
Tip objekta:
Stanje objekta:
Struktura:
Sprat:
Način grejanja:
Uknjiženost:
Dodatno:
253.000 €
StanoviNiš-p-015647
115 m2
Stan
Izvorno
4.0
2/4
Etažno
Nije uknjiženo
Terasa, lift
Oglas ažuriran: 27.01.2026 (12:10)
Oglas proveren: 02.02.2026 (06:25)

Opis oglasa:
Šifra oglasa:
StanoviNiš-p-015647
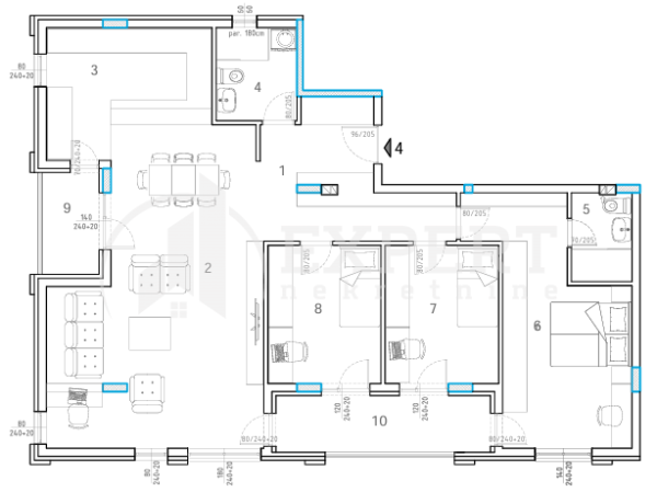
Na prodaju stan u novogradnji u blizini Rode, projektovane površine 115 Mm2. Nalazi se na jednoj od najpopularnijih lokacija za porodični život zbog blizine škole, vrtića i svih potrebnih infrastrukturnih objekata. Sastoji se od ulaznog hodnika, dnevnog boravka sa trpezarijom, kuhinje, tri spavaće sobe,dva kupatila i dve terase.Stambeno-poslovni objekat je P+4, izgrađen po svim savremenim standardima, Spoljašnja stolarija je PVC sa roletnama sa elektropodizačima,unutrašnja od medijapana sa sigurnosnim ulaznim vratima. Na podovima je troslojni tarket parket dok je keramika u kuhinji i kupatilu velikih dimenzija, prve klase.Spoljašnja izolacija je 10cm debljine, na podovima i između stanova postoji zvučna izolacija. Grejanje je etažno sa kotlom na struju i ugrađenim grejnim telima. Svakom stanu pripada ostava u podrumu zgrade dok se parking mesto dodatno naplaćuje. Moguća je kupovina putem stambenog kredita. Za kupce prvog stana postoji povrat PDV-a. Rok završetka je septembar 2027. godine. Ovo je samo deo naše ponude. Za više informacija, stojimo vam na raspolaganju.
Kontakt: 018 310 61 53
Adresa Knjaževačka
Klikni da pozoveš ili pošalješ poruku
Kontakt telefon
018 310 61 53
Prijavi grešku u oglasu
Zakaži gledanje stana
Zakaži gledanje stana
Pitaj oglašivača
Selektuj šta te interesuje:
Pošalji pitanje

Podeli stan sa prijateljima
Kopiraj link

Kontaktiraj oglašivača

Povezane pretrage:

Slični oglasi: