Oglas StanoviNiš-385956

Knjaževačka, Dvoiposoban stan na prodaju, 64.54m2, 141.990€

Šifra oglasa: StanoviNiš-385956
Niš, Pantelej, Durlan - Knjaževačka
Stan u zgradi, novogradnja, etažno grejanje, oglas ID StanoviNiš-385956

141.990 €

2.218,59 €/m2

Klikni da pozoveš ili pošalješ poruku
Kontakt telefon
065 531 12 00

Kliknite i ostavite kontakt kako biste saznali kako ovaj stan možete kupiti uz pomoć stambenog kredita:

Cena:
Šifra oglasa:
Kvadratura:
Tip objekta:
Stanje objekta:
Struktura:
Sprat:
Način grejanja:
Uknjiženost:
Dodatno:
141.990 €
StanoviNiš-385956
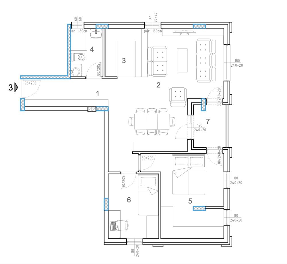
64.54 m2
Stan
U izgradnji
2.5
1/4
Etažno
U izgradnji
Terasa, lift
Oglas ažuriran: 20.02.2026 (16:49)
Oglas proveren: 30.04.2026 (23:25)

Opis oglasa:
Šifra oglasa:
StanoviNiš-385956
Na prodaju komforan dviposoban stan u kvalitetnoj novogradnji u Durlanu, biće useljiv sredinom 2027. godine.

Stan se nalazi u manjoj stambenoj zgradi sa ukupno 10 stanova, što budućim vlasnicima obezbeđuje dodatni mir i privatnost. Cena je direktno od investitora iznosi 2.200 €/m² sa PDV-om, uz mogućnost povraćaja PDV-a za kupce koji ostvaruju to pravo.

Objekat je građen sa posebnim akcentom na kvalitet i komfor stanovanja. Fasada je termoizolovana slojem stiropora debljine 10 cm, dok su podovi i zidovi dodatno zvučno izolovani, čime se postiže visok nivo privatnosti i energetske efikasnosti. Grejanje je etažno, svaki stan poseduje sopstveni električni kotao i radijatore, što omogućava potpunu kontrolu potrošnje i troškova. Sprovedene su instalacije za klima uređaj, dok sama klima nije uključena u cenu.

Kupatilo je opremljeno modernom i kvalitetnom opremom – granitna ugradna WC šolja sa ugradnim vodokotlićem i tuš kabina daju prostoru savremen i elegantan izgled. Podne obloge biće parket visokog kvaliteta, a kupci koji se odluče za kupovinu u fazi izgradnje imaju mogućnost izbora keramike u salonu ENMON, u okviru predviđenog budžeta investitora.

Oglas postavila agencija Neboder, br. u Registru posrednika 2058. Sve naše projekte koje oglašavamo i prodajemo direktno od investitora, možete pogledati na sajtu NovogradnjaNis.rs
Kontakt: 065 531 12 00
Adresa Knjaževačka
Klikni da pozoveš ili pošalješ poruku
Kontakt telefon
065 531 12 00
Prijavi grešku u oglasu
Zakaži gledanje stana
Zakaži gledanje stana
Pitaj oglašivača
Selektuj šta te interesuje:
Pošalji pitanje

Podeli stan sa prijateljima
Kopiraj link

Kontaktiraj oglašivača


Slični oglasi: