Oglas StanoviNiš-388116

Jednoiposoban stan na prodaju, 46.40m2, 88.160€

Šifra oglasa: StanoviNiš-388116
Niš, Palilula Niš
Jednoiposoban stan na Paliluli sa odličnim rasporedom

88.160 €

1.916,52 €/m2

Klikni da pozoveš ili pošalješ poruku
Kontakt telefon
065 531 12 00

Kliknite i ostavite kontakt kako biste saznali kako ovaj stan možete kupiti uz pomoć stambenog kredita:

Cena:
Šifra oglasa:
Kvadratura:
Tip objekta:
Stanje objekta:
Struktura:
Sprat:
Način grejanja:
Uknjiženost:
Dodatno:
88.160 €
StanoviNiš-388116
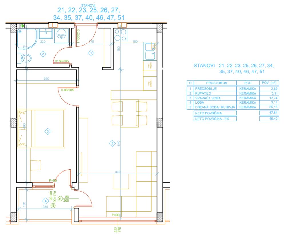
46.40 m2
Stan
U izgradnji
1.5
1/2
Električno
U izgradnji
Terasa
Oglas ažuriran: 08.03.2026 (12:10)
Oglas proveren: 30.04.2026 (09:25)

Opis oglasa:
Šifra oglasa:
StanoviNiš-388116
Direktno od investitora! Na prodaju jednoiposoban stan u Nišu, u opštini Palilula, u naselju Apelovac koje se nalazi iza Čaira. Lokacija je mirna i prijatna za život, a istovremeno odlično povezana sa ostatkom grada i u blizini svih važnih sadržaja potrebnih za svakodnevni život.

Zgrada je projektovana po visokim standardima energetske efikasnosti i komfora. Spoljašnost objekta čini termoizolovana fasada sa slojem kamene vune debljine 10 cm, koja obezbeđuje odličnu toplotnu i zvučnu izolaciju. Ugrađena je kvalitetna PVC stolarija sa termoizolovanim aluminijumskim roletnama i niskoemisionim staklima, što doprinosi manjoj potrošnji energije i prijatnoj temperaturi u stanu tokom cele godine.

Završetan izgradnje je planiran za 2027.

Unutrašnjost stanova osmišljena je tako da pruži maksimalnu funkcionalnost i moderan izgled. Podne obloge čine kvalitetni laminati u kombinaciji sa granitnom keramikom prve klase, dok su unutrašnja vrata izrađena od furniranog medijapana savremenog dizajna. Kupatilo je opremljeno modernom sanitarnom opremom, uključujući stakleni paravan, konzolnu WC šolju sa ugradnim vodokotlićem i umivaonik sa ormarićem.

Grejanje je etažno na električni kotao, uz kombinaciju podnog grejanja u prostorijama sa keramikom i radijatora u ostalim delovima stana. Svaki stan poseduje i klima uređaj koji obezbeđuje dodatni komfor tokom toplijih meseci.

Zgrada poseduje interfon, video nadzor i uređeno dvorište, što doprinosi sigurnosti i prijatnom životnom ambijentu. Postoji i mogućnost povraćaja PDV-a za kupce prvog stana u novogradnji.

Ova nekretnina predstavlja odličan izbor za sve koji traže moderan, kvalitetno građen i energetski efikasan stan u mirnom delu grada, idealan kako za porodično stanovanje, tako i kao investiciju.
Kontakt: 065 531 12 00
Klikni da pozoveš ili pošalješ poruku
Kontakt telefon
065 531 12 00
Prijavi grešku u oglasu
Zakaži gledanje stana
Zakaži gledanje stana
Pitaj oglašivača
Selektuj šta te interesuje:
Pošalji pitanje

Podeli stan sa prijateljima
Kopiraj link

Kontaktiraj oglašivača


Slični oglasi: