Oglas StanoviNiš-392502

Dvoiposoban stan na prodaju, 56.65m2, 112.840€

Šifra oglasa: StanoviNiš-392502
Niš, Pantelej
Dvoiposoban stan sa terasom i garažnim mestom

112.840 €

2.015,00 €/m2

Klikni da pozoveš ili pošalješ poruku
Kontakt telefon
065 531 12 00

Kliknite i ostavite kontakt kako biste saznali kako ovaj stan možete kupiti uz pomoć stambenog kredita:

Cena:
Šifra oglasa:
Kvadratura:
Tip objekta:
Stanje objekta:
Struktura:
Sprat:
Način grejanja:
Uknjiženost:
Dodatno:
112.840 €
StanoviNiš-392502
56.65 m2
Stan
U izgradnji
2.5
2/4
Električno
U izgradnji
Terasa, garaža, lift
Oglas ažuriran: 05.04.2026 (14:04)
Oglas proveren: 25.05.2026 (02:25)

Opis oglasa:
Šifra oglasa:
StanoviNiš-392502
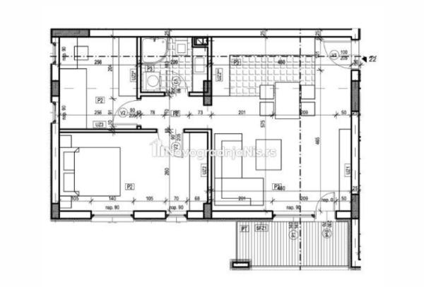
Na prodaju je dvoiposoban stan sa garažnim mestom u novogradnji na Panteleju, u delu grada koji se izdvaja po mirnom okruženju, dobroj infrastrukturi i sve većoj traženosti.

Zgrada će biti izgrađena najkasnije juna 2027.

Stan se nalazi u kvalitetno građenoj zgradi, projektovanoj sa posebnim fokusom na energetsku efikasnost i dugotrajnost, što potvrđuje i energetski pasoš objekta. Prostor je funkcionalno organizovan, svetao i prilagođen savremenom načinu života — idealan kako za pojedince i parove, tako i kao sigurna investicija.

U stanu su predviđeni Tarkett parket u dnevnim i spavaćim prostorijama, kao i kvalitetna PVC stolarija koja doprinosi boljoj izolaciji i komforu. Zgrada poseduje lift, a posebna pogodnost je što je u cenu stana uključeno parking mesto u podzemnoj garaži.

Cena je iskazana sa uračunatim PDV-om, kupovina je direktno od investitora, a kupci prvog stana imaju pravo na povraćaj PDV-a, što ovu ponudu čini dodatno isplativom.

Kvalitetna novogradnja, odlična lokacija i uključeno parking mesto – idealna prilika za kupovinu stana na Panteleju.

Stan postavila agencija Neboder nekretnine koja oglašava investitora, upisana u Registars posrednika pod brojem 2058. Kupovina direktno od investitora. Oglašena cena sa PDV-om.
Kontakt: 065 531 12 00
Klikni da pozoveš ili pošalješ poruku
Kontakt telefon
065 531 12 00
Prijavi grešku u oglasu
Zakaži gledanje stana
Zakaži gledanje stana
Pitaj oglašivača
Selektuj šta te interesuje:
Pošalji pitanje

Podeli stan sa prijateljima
Kopiraj link

Kontaktiraj oglašivača


Slični oglasi: