Oglas StanoviNiš-6409

Troiposoban stan na prodaju, 76m2, 129.940€

Šifra oglasa: StanoviNiš-6409
Niš, Pantelej
Moderan stambeni kompleks sa PDV-om smešten u mirnijem delu Panteleja-idealan za porodičan život ID#StanoviNiš-6409

129.940 €

1.709,74 €/m2

Klikni da pozoveš ili pošalješ poruku
Kontakt telefon
018 310 52 63

Kliknite i ostavite kontakt kako biste saznali kako ovaj stan možete kupiti uz pomoć stambenog kredita:

Cena:
Šifra oglasa:
Kvadratura:
Tip objekta:
Stanje objekta:
Struktura:
Sprat:
Način grejanja:
Uknjiženost:
Dodatno:
129.940 €
StanoviNiš-6409
76 m2
Stan
Izvorno
3.5
1
Etažno
Nije uknjiženo
Lift
Oglas ažuriran: 02.06.2025 (11:25)
Oglas proveren: 29.10.2025 (01:25)

Opis oglasa:
Šifra oglasa:
StanoviNiš-6409
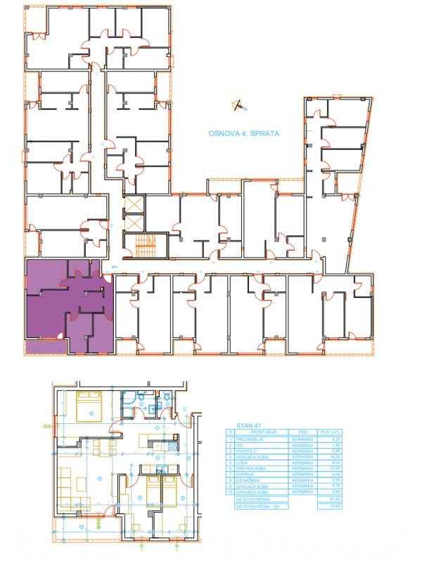
U ponudi je moderna novogradnja smeštena u mirnijem delu Pantelja koja ispunjava sve zahteve energetske efikasnosti i prilagođena je savremenom načinu života jedne porodice. Prodaje se troiposoban stan površine 76,43m2, na I spratu stambene zgrade sa liftom. Struktura stana: ulazni hodnik, dnenvni boravak sa kuhinjom i trpezarijom, tri spavaće sobe, kupatila i terase. U gradnji se koriste visokokvalitetni materijali: Spoljni zidovi od energetskog bloka sa termoizolacijom 12 cm, zidovi izmedju stanova od bloka debljine 25cm, Demit fasada, kombinacija boja sa upuštenim lajsnama koje definišu strukturnu podelu fasade, PVC stolarija u kombinaciji bela/antracit (unutra/spolja) sa ALU roletnama u antracit boji, inverter klima uređaj, zidana terasa sa ukrasnim metalnim rukohvatom u antracit boji, bukov parket na podovima, konzolne WC šolje sa ugradnim vodokotlićima (tipa Geberit), Walk-in tuš kabina sa linijskim slivnikom i staklenim paravanom, keramika u hodnicima, protivklizna keramika na terasama. Postoji mogućnost kupovine parking mesta u podzemnoj garaži po ceni 8000e i napolju po ceni od 4500e. Predviđeno je uređenje slobodnih i zelenih površina unutar kompleksa a na svega 5-10 minuta hodom, stanari će imati pristup svim sadržajima koji čine moderan način života ( prodavnice, marketi, kafići, vrtić). U cenu je uključen PDV i kupci prvog stana imaju pravo na povraćaj PDV-a u iznosu od 10%.Hvala Vam što ste pogledali oglas. Za više informacija o ovoj ili drugim nekretninama i zakazivanje razgledanja kontaktirajte agenta na broj telefona iz oglasa (poziv, sms, viber) ili putem e-maila. Kompletnu ponudu dostupnih nekretnina možete pronaći na našem sajtu. Agencija Proagent nekretnine je upisana u Registru posrednika pod brojem: 940.
Kontakt: 018 310 52 63
Klikni da pozoveš ili pošalješ poruku
Kontakt telefon
018 310 52 63
Prijavi grešku u oglasu
Zakaži gledanje stana
Zakaži gledanje stana
Pitaj oglašivača
Selektuj šta te interesuje:
Pošalji pitanje

Podeli stan sa prijateljima
Kopiraj link

Kontaktiraj oglašivača
Proagent nekretnine - profilna slika
Proagent nekretnine


Slični oglasi: