Oglas StanoviNiš-6684

Troiposoban stan na prodaju, 82m2, 150.000€

Šifra oglasa: StanoviNiš-6684
Niš, Palilula Niš
Odlična ponuda-polunamešten troiposoban stan na Paliluli ID#StanoviNiš-6684

150.000 €

1.829,27 €/m2

Klikni da pozoveš ili pošalješ poruku
Kontakt telefon
018 310 52 67

Kliknite i ostavite kontakt kako biste saznali kako ovaj stan možete kupiti uz pomoć stambenog kredita:

Cena:
Šifra oglasa:
Kvadratura:
Tip objekta:
Stanje objekta:
Struktura:
Sprat:
Način grejanja:
Uknjiženost:
150.000 €
StanoviNiš-6684
82 m2
Stan
Izvorno
3.5
3
Centralno
Uknjiženo
Oglas ažuriran: 30.06.2025 (13:04)
Oglas proveren: 28.10.2025 (17:25)

Opis oglasa:
Šifra oglasa:
StanoviNiš-6684
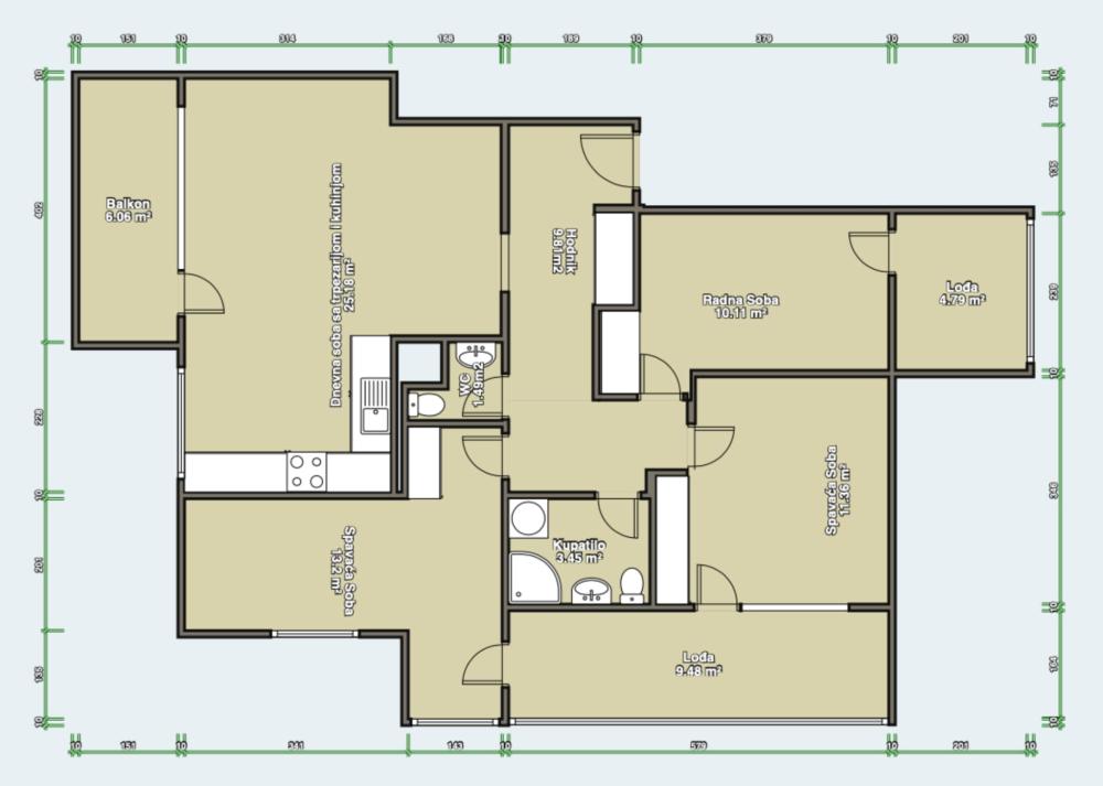
Na prodaju prostran i svetao stan površine 82m2, u blizini Palilulske rampe. Nalazi se na III spratu stambene zgrade bez lifta. Ovaj funkcionalan stan sastoji se od hodnika koji vodi do tri udobne spavaće sobe, prostranog dnevnog boravka sa trpezarijom i kuhinjom, savršenim za porodična okupljanja i opuštanje, kupatila i terase koje pružaju mogućnost uživanja u svežem vazduhu i pogledu na okolinu. Na podu je parket, stolarija je PVC profila, grejanje je centralno. Orijentisan je istok-zapad, što garantuje puno svetlosti tokom dana. Prodaje se polunamešten, uz mogućnost dogovora o nameštaju sa kupcima, što omogućava budućim vlasnicima da prilagode prostor svojim potrebama i stilu. Ovo je odlična prilika za sve koji traže udoban dom u mirnom i pristupačnom delu grada. Ne propustite šansu da postanete vlasnik ovog predivnog stana! Za više informacija o ovoj ili drugim nekretninama i zakazivanje razgledanja kontaktirajte agenta na broj telefona iz oglasa (poziv, sms, viber) ili putem e-maila. Kompletnu ponudu dostupnih nekretnina možete pronaći na našem sajtu. Agencija Proagent nekretnine je upisana u Registru posrednika pod brojem: 940.
Kontakt: 018 310 52 67
Klikni da pozoveš ili pošalješ poruku
Kontakt telefon
018 310 52 67
Prijavi grešku u oglasu
Zakaži gledanje stana
Zakaži gledanje stana
Pitaj oglašivača
Selektuj šta te interesuje:
Pošalji pitanje

Podeli stan sa prijateljima
Kopiraj link

Kontaktiraj oglašivača
Proagent nekretnine - profilna slika
Proagent nekretnine


Slični oglasi: