Oglas StanoviNiš-p-014326

Marina Držića, Dvoiposoban stan na prodaju, 46m2, 85.322€

Šifra oglasa: StanoviNiš-p-014326
Niš, Palilula Niš, Trošarina - Marina Držića
Stan u zgradi, novogradnja, uknjižen, grejanje na struju, oglas ID StanoviNiš-p-014326

85.322 €

1.854,83 €/m2

Klikni da pozoveš ili pošalješ poruku
Kontakt telefon
018 310 61 53

Kliknite i ostavite kontakt kako biste saznali kako ovaj stan možete kupiti uz pomoć stambenog kredita:

Cena:
Šifra oglasa:
Kvadratura:
Tip objekta:
Stanje objekta:
Struktura:
Sprat:
Način grejanja:
Uknjiženost:
Dodatno:
85.322 €
StanoviNiš-p-014326
46 m2
Stan
Izvorno
2.5
2/3
Električno
Uknjiženo
Terasa, parking, lift
Oglas ažuriran: 22.01.2026 (10:25)
Oglas proveren: 25.03.2026 (17:25)

Opis oglasa:
Šifra oglasa:
StanoviNiš-p-014326
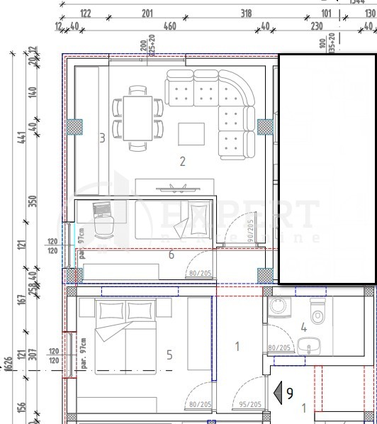
Na prodaju stan u izgradnji u stambenoj zgradi PO+PR+3, sa 14 stambenih jedinica. Zgrada se nalazi u mirnoj ulici na Trošarini u blizini osnovne škole, obdaništa, PMF-a, Bogoslovije... Odlična investicija, kako za stanovanje, tako i za izdavanje. Stan je po strukturi strukturi dvoiposoban, površine 46,12m2. Sastoji se od hodnika, dnevne sobe sa trpezarijom, kuhinje, dve spavaće sobe i kupatila. Stan se nalazi na drugom spratu zgrade sa liftom. Na podovima je parket, u kuhinji i kupatilu kvalitetna keramika, PVC stolarija sa roletnama, grejanje i hlađenje inverter klimama. Završetak radova predviđen je za 01.10.2026. godine. Parking mesta u dvorištu i podzemnoj garaži se naknadno naplaćuju. Objekat je u fazi rekonstrukcije i izgradnje, tako da će pojedine stambene jedinice imati određeni procenat povraćaja PDV-a za kupce prvog stana. Ovo je samo deo naše ponude, za više informacija javite se i posetite naš sajt.
Kontakt: 018 310 61 53
Adresa Marina Držića
Klikni da pozoveš ili pošalješ poruku
Kontakt telefon
018 310 61 53
Prijavi grešku u oglasu
Zakaži gledanje stana
Zakaži gledanje stana
Pitaj oglašivača
Selektuj šta te interesuje:
Pošalji pitanje

Podeli stan sa prijateljima
Kopiraj link

Kontaktiraj oglašivača


Slični oglasi: