Oglas StanoviNiš-p-014283

Marina Držića, Troiposoban stan na prodaju, 63m2, 118.289€

Šifra oglasa: StanoviNiš-p-014283
Niš, Palilula Niš, Trošarina - Marina Držića
Stan u zgradi, novogradnja, grejanje na struju, oglas ID StanoviNiš-p-014283

118.289 €

1.877,60 €/m2

Klikni da pozoveš ili pošalješ poruku
Kontakt telefon
018 310 61 53

Kliknite i ostavite kontakt kako biste saznali kako ovaj stan možete kupiti uz pomoć stambenog kredita:

Cena:
Šifra oglasa:
Kvadratura:
Tip objekta:
Stanje objekta:
Struktura:
Sprat:
Način grejanja:
Uknjiženost:
Dodatno:
118.289 €
StanoviNiš-p-014283
63 m2
Stan
Izvorno
3.5
1
Električno
Nije uknjiženo
Terasa, lift
Oglas ažuriran: 22.01.2026 (10:25)
Oglas proveren: 16.02.2026 (18:25)

Opis oglasa:
Šifra oglasa:
StanoviNiš-p-014283
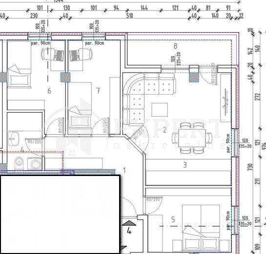
Na prodaju stan u izgradnji u stambenoj zgradi PO+PR+3, sa 14 stambenih jedinica. Zgrada se nalazi u mirnoj ulici na Trošarini u blizini osnovne škole, obdaništa, PMF-a, Bogoslovije... Odlična investicija, kako za stanovanje, tako i za izdavanje.


Stan je po strukturi troiposoban, površine 63.94 m2. Sastoji se od hodnika, dnevne sobe sa kuhinjom i trpezarijom, tri spavaće sobe, kupatila i terase.



Stan se nalazi na prvom spratu zgrade sa liftom, na podovima je parket, u kuhinji i kupatilu kvalitetna keramika, PVC stolarija sa roletnama, grejanje i hlađenje inverter klimama. Završetak radova je predviđen za 01.10.2026. godine. Parking mesta u dvorištu i podzemnoj garaži se naknadno naplaćuju. Objekat je u fazi rekonstrukcije i izgradnje, tako da će pojedine stambene jedinice imati određeni procenat povraćaja PDV-a za kupce prvog stana.



Ovo je samo deo naše ponude, za više informacija javite se i posetite naš sajt.
Kontakt: 018 310 61 53
Adresa Marina Držića
Klikni da pozoveš ili pošalješ poruku
Kontakt telefon
018 310 61 53
Prijavi grešku u oglasu
Zakaži gledanje stana
Zakaži gledanje stana
Pitaj oglašivača
Selektuj šta te interesuje:
Pošalji pitanje

Podeli stan sa prijateljima
Kopiraj link

Kontaktiraj oglašivača


Slični oglasi: