Oglas StanoviNiš-9549

Palilula, Troiposoban stan na prodaju, 79.5m2, 147.870€

Šifra oglasa: StanoviNiš-9549
Niš, Palilula Niš - Palilula
Prodaja troiposobnog stana, Palilula Niš, terasa, lift

147.870 €

1.871,77 €/m2

Klikni da pozoveš ili pošalješ poruku
Kontakt telefon
018 310 44 55

Kliknite i ostavite kontakt kako biste saznali kako ovaj stan možete kupiti uz pomoć stambenog kredita:

Ovaj oglas je deo projekta:
Slika projekta Moderna stambena zgrada na mirnom lokaciji u Mokranjčevoj ulici
Pogledaj projekat:

Cena:
Šifra oglasa:
Kvadratura:
Tip objekta:
Stanje objekta:
Struktura:
Sprat:
Način grejanja:
Uknjiženost:
Dodatno:
147.870 €
StanoviNiš-9549
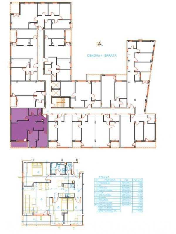
79.5 m2
Stan
U izgradnji
3.5
4/4
Etažno
U izgradnji
Terasa, lift
Oglas ažuriran: 22.04.2026 (09:18)
Oglas proveren: 04.05.2026 (12:23)

Opis oglasa:
Šifra oglasa:
StanoviNiš-9549
Bez agencijske provizije! Prodaje se troiposoban stan u novogradnji na Paliluli. Zgrada je u izgradnji, ima ukupno 4 sprata. Stanovi su dostupni na više spratova, a još uvek su dostupne i različite kvadrature.

Karakteristike stana:
- Termoizolovana fasada od kamene vune debljine 10 cm, koja pruža odličnu zaštitu od temperature i buke.
- Fasаdna stolarija: Višekomorni PVC profili sa termoizolovanim aluminijumskim roletnama i niskoemisionim vakumiranim staklima koji doprinose uštedi energije.
- Sobna vrata: Vrata od furniranog medijapana, modernog dizajna.
- Ulazna vrata: Sigurnosna vrata sa atestom na vatrootpornost, za maksimalnu sigurnost.

Unutrašnji prostor:
- Podne obloge: Laminat debljine 10mm u klasi 32 ili 33, sa belim drvenim lajsnama i granitnom keramikom u mokrim čvorovima.
- Keramika: Granitna keramika prve klase u svim kupatilskim prostorima.
- Sanitarija: Elegantan stakleni paravan u skladu sa uslovima kupatila, usponski tuš, konzolna WC šolja sa ugradnim vodokotlićem (GEBERIT ili slične klase), kao i umivaonik sa ormarićem.

Grejanje: Etažno grejanje putem električnog kotla u kombinaciji sa podnim grejanjem u svim prostorijama gde je postavljen keramički pod, dok se radijatori nalaze u ostalim delovima stana. Za letnji period, stan je opremljen klima uređajem.

Dodatni sadržaj:

- Bojler sa prohromskim kazanom za pouzdano snabdevanje toplom vodom.
- Svi sanitarni uređaji opremljeni su jednoručnim baterijama.

Ovaj stan je savršena prilika za one koji žele da žive u energetski efikasnom prostoru sa modernim dizajnom i udobnošću.
jednog klima uredjaja za svaki stan, sa namenom za letnji period.

Useljenje do kraja 2027. godine. Moguć povraćaj PDV-a za kupce prvog stana u novogradnji.
Kontakt: 018 310 44 55
Adresa Palilula
Klikni da pozoveš ili pošalješ poruku
Kontakt telefon
018 310 44 55
Prijavi grešku u oglasu
Zakaži gledanje stana
Zakaži gledanje stana
Pitaj oglašivača
Selektuj šta te interesuje:
Pošalji pitanje

Podeli stan sa prijateljima
Kopiraj link

Kontaktiraj oglašivača


Slični oglasi: