Oglas StanoviNiš-371120

Mokranjčeva, Jednoiposoban stan na prodaju, 46.95m2, 88.266€

Šifra oglasa: StanoviNiš-371120
Niš, Palilula Niš - Mokranjčeva
1.5 stan, dostupan na više spratova

88.266 €

1.918,83 €/m2

Klikni da pozoveš ili pošalješ poruku
Kontakt telefon
065 531 12 00

Kliknite i ostavite kontakt kako biste saznali kako ovaj stan možete kupiti uz pomoć stambenog kredita:

Cena:
Šifra oglasa:
Kvadratura:
Tip objekta:
Stanje objekta:
Struktura:
Sprat:
Način grejanja:
Uknjiženost:
Dodatno:
88.266 €
StanoviNiš-371120
46.95 m2
Stan
U izgradnji
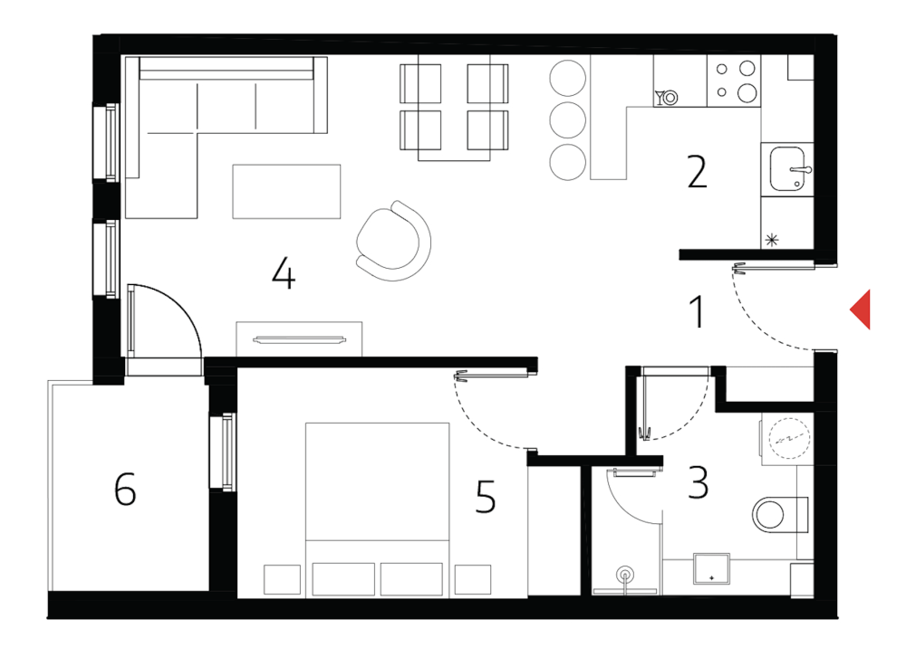
1.5
1/5
Etažno
U izgradnji
Terasa, lift
Oglas ažuriran: 16.03.2026 (20:25)
Oglas proveren: 19.03.2026 (22:25)

Opis oglasa:
Šifra oglasa:
StanoviNiš-371120
Na prodaju jednoiposoban stan u novogradnji na Paliluli u okviru modernog stambenog kompleksa koji se trenutno gradi po najvišim standardima kvaliteta. Stan je projektovan tako da maksimalno iskoristi prostor i pruži osećaj udobnosti i topline.

Cena je izražena sa PDV-om i ista je kao kod investitora. Odlikuje ga savršen balans između funkcionalnosti i estetike – dnevni boravak sa kuhinjom i trpezarijom čini centralni deo prostora, dok spavaća soba nudi mir i privatnost. Kvalitetni materijali i pažljivo birani detalji doprinose prijatnom ambijentu i dugotrajnosti.

Zahvaljujući primeni savremenih izolacionih materijala i smart tehnologija, život u ovom stanu biće udoban, energetski efikasan i jednostavan za održavanje. Stan je idealan izbor za pojedince, parove ili kao investicija, uz mogućnost povraćaja PDV-a za kupce prvog stana. Ova novogradnja na Paliluli nudi mirno i prijatno okruženje, a istovremeno je odlično povezana sa svim važnim delovima grada.
Kontakt: 065 531 12 00
Adresa Mokranjčeva
Klikni da pozoveš ili pošalješ poruku
Kontakt telefon
065 531 12 00
Prijavi grešku u oglasu
Zakaži gledanje stana
Zakaži gledanje stana
Pitaj oglašivača
Selektuj šta te interesuje:
Pošalji pitanje

Podeli stan sa prijateljima
Kopiraj link

Kontaktiraj oglašivača


Slični oglasi: