Oglas StanoviNiš-9686

Pantelej, Dvoiposoban stan na prodaju, 55.41m2, 99.740€

Šifra oglasa: StanoviNiš-9686
Niš, Pantelej - Pantelej
Prodaja dvoiposobnog stana, Pantelej Niš, terasa, lift

99.740 €

1.813,45 €/m2

Klikni da pozoveš ili pošalješ poruku
Kontakt telefon
018 310 44 55

Kliknite i ostavite kontakt kako biste saznali kako ovaj stan možete kupiti uz pomoć stambenog kredita:

Ovaj oglas je deo projekta:
Slika projekta Poslednji slobodan stan u novoj zgradi na Panteleju
Pogledaj projekat:

Cena:
Šifra oglasa:
Kvadratura:
Tip objekta:
Stanje objekta:
Struktura:
Sprat:
Način grejanja:
Uknjiženost:
Dodatno:
99.740 €
StanoviNiš-9686
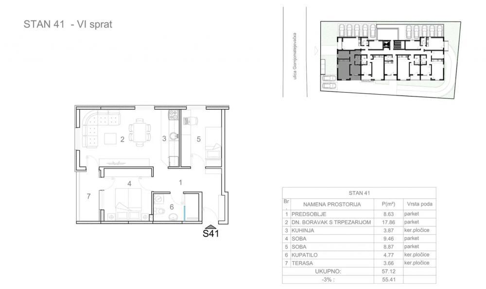
55.41 m2
Stan
U izgradnji
2.5
6/6
Električno
U izgradnji
Terasa, lift
Oglas ažuriran: 21.10.2025 (08:52)
Oglas proveren: 30.10.2025 (20:23)

Opis oglasa:
Šifra oglasa:
StanoviNiš-9686
Na prodaju dvoiposoban stan u novoj stambenoj zgradi u izgradnji na Panteleju. Svi stanovi u objektu su već prodati osim ovog, što ovu ponudu čini jedinstvenom prilikom za kupce koji žele da na vreme obezbede dom u kvalitetnoj novogradnji. Zgrada se gradi po savremenim građevinskim standardima, sa akcentom na energetsku efikasnost, zvučnu izolaciju i moderan izgled. Predviđeni su lift, podzemna garaža i parking mesta na platou, čime je obezbeđen pun komfor stanovanja. Svaki stan ima ostavu u podrumu, što je dodatna pogodnost za odlaganje stvari i organizaciju prostora. Lokacija objekta pruža mirno okruženje i istovremeno blizinu svih važnih sadržaja – prodavnica, apoteka, parka, škole i autobuske stanice, što ovaj deo Panteleja čini idealnim za porodični život. Ovaj dvoiposoban stan spaja kvalitetnu gradnju, funkcionalan raspored i odličnu lokaciju, predstavljajući pouzdanu i dugoročnu investiciju. Cena je ista kao kod investitora, sa mogućnošću povraćaja PDV-a za kupce prvog stana u novogradnji.
Kontakt: 018 310 44 55
Adresa Pantelej
Klikni da pozoveš ili pošalješ poruku
Kontakt telefon
018 310 44 55
Prijavi grešku u oglasu
Zakaži gledanje stana
Zakaži gledanje stana
Pitaj oglašivača
Selektuj šta te interesuje:
Pošalji pitanje

Podeli stan sa prijateljima
Kopiraj link

Kontaktiraj oglašivača


Slični oglasi: