Oglas StanoviNiš-371899

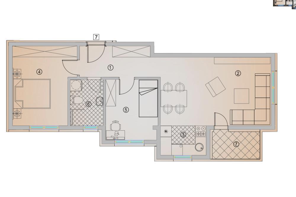
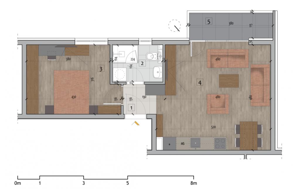
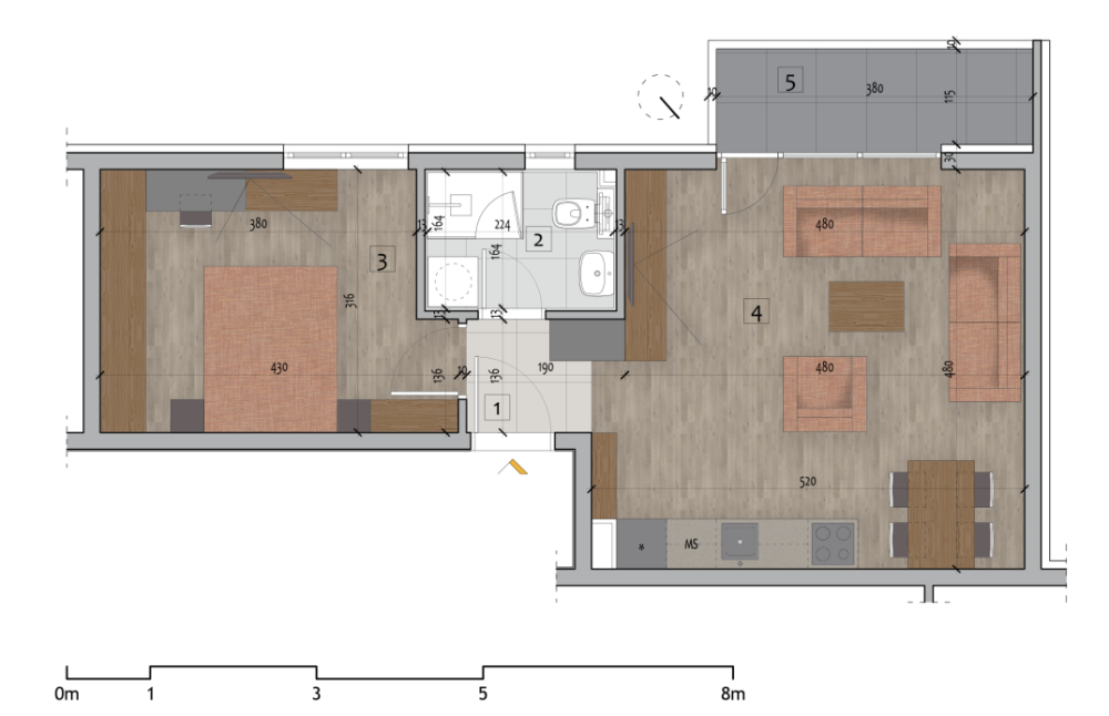
Dvoiposoban stan na prodaju, 64.70m2, 116.460€

Šifra oglasa: StanoviNiš-371899
Niš, Pantelej
Stan u zgradi, novogradnja, etažno grejanje, oglas ID StanoviNiš-371899

116.460 €

1.819,69 €/m2

Klikni da pozoveš ili pošalješ poruku
Kontakt telefon
065 531 12 00

Kliknite i ostavite kontakt kako biste saznali kako ovaj stan možete kupiti uz pomoć stambenog kredita:

Cena:
Šifra oglasa:
Kvadratura:
Tip objekta:
Stanje objekta:
Struktura:
Sprat:
Način grejanja:
Uknjiženost:
Dodatno:
116.460 €
StanoviNiš-371899
64.70 m2
Stan
U izgradnji
2.5
2/4
Etažno
U izgradnji
Terasa, lift
Oglas ažuriran: 24.10.2025 (11:18)
Oglas proveren: 30.10.2025 (16:25)

Opis oglasa:
Šifra oglasa:
StanoviNiš-371899
Odlična ponuda! Na prodaju dvoiposoban stan u novogradnji na Panteleju, u predelu oko Pantelejske crkve, što je između centra i novog dela Panteleja. Objekat je trenutno u izgradnji, a završetak radova i useljenje planirani su za jun 2026. godine – što znači da ćete uskoro moći da uživate u svom novom domu! Još uvek dostupan na više spratova. Zgrada ima samo 13 stanova, što obezbeđuje veću privatnost, komfor i mirniji život u odnosu na veće stambene komplekse. Projektovana je po savremenim standardima, sa kvalitetnim termo-blok materijalima, PVC stolarijom, kvalitetnim parketom, liftom i dobrom termo i zvučnom izolacijom. Kupovina stana u ovoj zgradi predstavlja odličnu priliku za sve koji traže mirno, moderno i kvalitetno mesto za život ili sigurnu investiciju. Cena je ista kao kod investitora, 1800 evra sa PDV-om. Moguć povraćaj PDV-a za kupce koji ostvaruju uslove.
Kontakt: 065 531 12 00
Klikni da pozoveš ili pošalješ poruku
Kontakt telefon
065 531 12 00
Prijavi grešku u oglasu
Zakaži gledanje stana
Zakaži gledanje stana
Pitaj oglašivača
Selektuj šta te interesuje:
Pošalji pitanje

Podeli stan sa prijateljima
Kopiraj link

Kontaktiraj oglašivača


Slični oglasi: