Donja Vrežina, Dvoiposoban stan na prodaju, 47.79m2, 76.464€

Šifra oglasa: StanoviNiš-372645
Niš, Pantelej, Donja Vrežina - Donja Vrežina
Dostupan je na više spratova

76.464 €

1.626,89 €/m2

Klikni da pozoveš ili pošalješ poruku
Kontakt telefon
065 531 12 00

Kliknite i ostavite kontakt kako biste saznali kako ovaj stan možete kupiti uz pomoć stambenog kredita:

Cena:
Šifra oglasa:
Kvadratura:
Tip objekta:
Stanje objekta:
Struktura:
Sprat:
Način grejanja:
Uknjiženost:
Dodatno:
76.464 €
StanoviNiš-372645
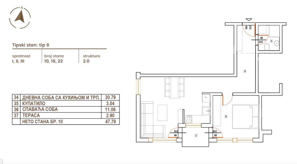
47.79 m2
Stan
U izgradnji
2.5
1/3
Električno
U izgradnji
Terasa, lift
Oglas ažuriran: 30.10.2025 (08:35)
Oglas proveren: 30.10.2025 (16:25)

Opis oglasa:
Šifra oglasa:
StanoviNiš-372645
Na prodaju je dvoiposoban stan u novogradnji na mirnoj, porodičnoj lokaciji u Donjoj Vrežini. Zgrada će biti izgrađena decembra 2026. i deo je pažljivo osmišljenog stambenog kompleksa sa 22 stana, projektovanog da pruži savremenu udobnost, funkcionalnost i dugoročan kvalitet. Većina stanova su već prodati. Za grejanje i hlađenje zadužene su inverter klime koje obezbeđuju optimalnu temperaturu i niske troškove održavanja. Cena je ista kao kod investitora i već uključuje PDV: 1.600 €/m² za keš kupce 1.750 €/m² za kupce putem kredita Kupci prvog stana ostvaruju pravo na povraćaj PDV-a, što ovu ponudu čini povoljnijom. Zgrada je projektovana sa liftom, video nadzorom i interfonom, dok demit fasada sa 10 cm termoizolacije obezbeđuje odličnu energetsku efikasnost i prijatnu temperaturu tokom cele godine. Unutrašnjost stanova krase Tarkett parket, granitna keramika prve klase, PVC šestokomorna stolarija sa niskoemisionim staklima i aluminijumskim roletnama, kao i sigurnosna ulazna vrata. Kupatila su opremljena Geberit ugradnim vodokotlićima i kvalitetnim sanitarijama, dok su na terasama postavljene protivklizne pločice.
Kontakt: 065 531 12 00
Adresa Donja Vrežina
Klikni da pozoveš ili pošalješ poruku
Kontakt telefon
065 531 12 00
Prijavi grešku u oglasu
Zakaži gledanje stana
Zakaži gledanje stana
Pitaj oglašivača
Selektuj šta te interesuje:
Pošalji pitanje

Podeli stan sa prijateljima
Kopiraj link

Kontaktiraj oglašivača


Slični oglasi: