Oglas StanoviNiš-9821

Palilula, Troiposoban stan na prodaju, 84.50m2, 151.255€

Šifra oglasa: StanoviNiš-9821
Niš, Palilula Niš - Palilula
Prodaja troiposobnog stana, Palilula Niš, terasa, lift

151.255 €

1.800,65 €/m2

Klikni da pozoveš ili pošalješ poruku
Kontakt telefon
018 310 44 55

Kliknite i ostavite kontakt kako biste saznali kako ovaj stan možete kupiti uz pomoć stambenog kredita:

Ovaj oglas je deo projekta:
Slika projekta Novi stambeni objekat visokog kvaliteta na Paliluli
Pogledaj projekat:

Cena:
Šifra oglasa:
Kvadratura:
Tip objekta:
Stanje objekta:
Struktura:
Sprat:
Način grejanja:
Uknjiženost:
Dodatno:
151.255 €
StanoviNiš-9821
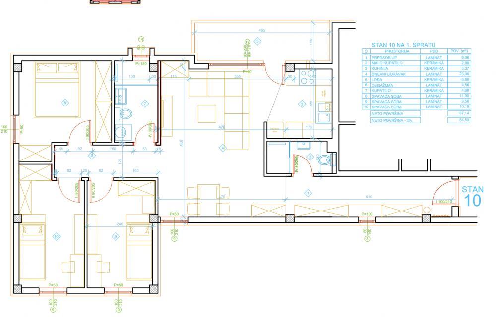
84.50 m2
Stan
U izgradnji
3.5
2/3
Etažno
U izgradnji
Terasa, lift
Oglas ažuriran: 05.03.2026 (12:07)
Oglas proveren: 20.04.2026 (15:19)

Opis oglasa:
Šifra oglasa:
StanoviNiš-9821
Cena je ista kao kod investitora i uključuje PDV. U ponudi je troiposoban stan površine u modernoj novogradnji na mirnoj lokaciji na Paliluli. U zgradi su ostala još samo dva slobodna stana, zato iskoristite priliku i rezervišite svoj na vreme.

Stan je funkcionalnog rasporeda i sastoji se od: predsoblja, dnevnog boravka sa kuhinjom, lođe, degazmana, kupatila, spavaće i dečije sobe.

Objekat se izdvaja savremenim dizajnom, kvalitetom gradnje i pažljivo biranim materijalima renomiranih proizvođača. Svaki stan je opremljen mermernim grejnim telima, inverter klima uređajem i najsavremenijim instalacijama.
Enterijer odlikuju Tarkett parket, sobna vrata od farbanog medijapana i demit fasada sa termo i zvučnom izolacijom.
Kupatila su opremljena modernom sanitarijom – stakleni paravan, konzolna WC šolja sa ugradnim vodokotlićem, umivaonik sa ormarićem i bojler sa prohromskim kazanom.
Etažno grejanje sa radijatorima i kotlom, uz podno grejanje u hodniku i kupatilu, obezbeđuje potpunu udobnost tokom cele godine.

Ova novogradnja na Paliluli predstavlja savršen spoj kvaliteta, modernog dizajna i udobnosti, idealna za porodično stanovanje ili sigurnu investiciju u jednoj od najpoželjnijih lokacija u Nišu.

Cena je ista kao kod investitora i uključuje PDV, uz mogućnost povraćaja PDV-a za kupce prvog stana u novogradnji. Napomena: cene rastu svakog meseca.
Kontakt: 018 310 44 55
Adresa Palilula
Klikni da pozoveš ili pošalješ poruku
Kontakt telefon
018 310 44 55
Prijavi grešku u oglasu
Zakaži gledanje stana
Zakaži gledanje stana
Pitaj oglašivača
Selektuj šta te interesuje:
Pošalji pitanje

Podeli stan sa prijateljima
Kopiraj link

Kontaktiraj oglašivača


Slični oglasi: