Oglas StanoviNiš-9997

Čalije, Trosoban stan na prodaju, 69.96m2, 131.400€

Šifra oglasa: StanoviNiš-9997
Niš, Pantelej, Čalije - Čalije
Prodaja trosobnog stana, Čalije Niš, terasa, lift

131.400 €

1.904,35 €/m2

Klikni da pozoveš ili pošalješ poruku
Kontakt telefon
065 531 12 00

Kliknite i ostavite kontakt kako biste saznali kako ovaj stan možete kupiti uz pomoć stambenog kredita:

Ovaj oglas je deo projekta:
Slika projekta Čalije Niš - Novi stanovi već od 56.300 evra sa PDV
Pogledaj projekat:

Cena:
Šifra oglasa:
Kvadratura:
Tip objekta:
Stanje objekta:
Struktura:
Sprat:
Način grejanja:
Uknjiženost:
Dodatno:
131.400 €
StanoviNiš-9997
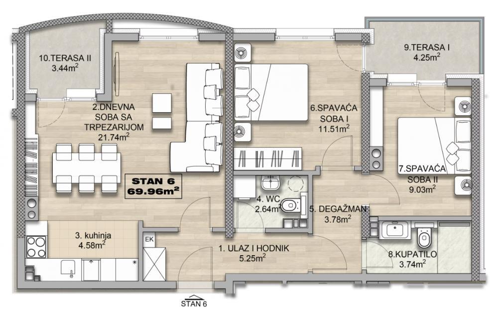
69.96 m2
Stan
U izgradnji
3.0
1/4
Električno
U izgradnji
Terasa, lift
Oglas ažuriran: 20.11.2025 (20:43)
Oglas proveren: 26.11.2025 (08:29)

Opis oglasa:
Šifra oglasa:
StanoviNiš-9997
Retko u ponudi! Na prodaju trosoban stan u modernoj SMART zgradi u naselju Čalije, sa planiranim useljenjem sledeće godine. Objekat predstavlja novu generaciju stanovanja, spoj savremene arhitekture, napredne tehnologije i visokokvalitetnih materijala.

Stan je orijentisan ka severoistoku.

Izražena je cena sa PDV-om, direktno od investitora, sa mogućnošću povraćaja PDV-a za kupce koji ostvaruju pravo. Stan je dostupan na više spratova. Požurite i rezervišite adekvatnu kvadraturu!

Stan će imati klima uređaj. Uz svaki stan ide i pripadajuća ostava.

Ovaj stambeni kompleks je projektovan da pruži izuzetan nivo komfora, sigurnosti i energetskog standarda. Zgrada poseduje integrisani SMART HOME sistem, koji omogućava upravljanje rasvetom, grejanjem i bezbednosnim funkcijama putem mobilne aplikacije.

Grejanje je rešeno visokokvalitetnim grejnim telima sa mogućnošću individualnog podešavanja temperature u svakoj prostoriji.

Podovi u dnevnom boravku i spavaćem delu obloženi su višeslojnim parketom, dok su kupatilo i kuhinja urađeni premium keramikom, sa izborom između više modela. Terase su obložene protivkliznim granitnim pločicama.

Kupatilo je opremljeno kvalitetnim sanitarnim elementima: ugradni vodokotlići, walk-in tuš, moderni ventili i pouzdane slavine.

Ulazna vrata su sigurnosna protivpožarna, furnirana hrastom sa obe strane, sa visokim stepenom zaštite i zvučne izolacije.

Za potpunu udobnost tokom cele godine ugrađen je inverter klima uređaj, dok kompleks poseduje i moderni sistem video nadzora za dodatnu sigurnost.
Kontakt: 065 531 12 00
Adresa Čalije
Klikni da pozoveš ili pošalješ poruku
Kontakt telefon
065 531 12 00
Prijavi grešku u oglasu
Zakaži gledanje stana
Zakaži gledanje stana
Pitaj oglašivača
Selektuj šta te interesuje:
Pošalji pitanje

Podeli stan sa prijateljima
Kopiraj link

Kontaktiraj oglašivača


Slični oglasi: