Projekat novogradnje Niš

Stambeno-poslоvni kompleks odličnog kvaliteta u centru

Sadržaj prezentacije projekta:

Novogradnja na odličnoj mirnoj lokaciji, blizu reke

Predstavljamo moderan stambeno-poslоvni kompleks vrhunskog kvaliteta, projektovan prema savremenim standardima gradnje и visokim normama energetske efikasnosti. Objekat je projektovan kao podrum + prizemlje + 5 spratova (Po+P+5), sa pažljivo osmišljenim stambenim jedinicama različitih struktura, poslovnim prostorima u prizemlju i organizovanim parking sistemom.

Cena
Cena po kvadratu iznosi 2.350-2.450 € za manje stanove, dok je za stanove preko 80 kvadrata niža. Oglašena je cena sa PDV-om, za kupce prvog stana moguć povraćaj PDV-a. Kupovina direktno od investitora.

Podrum
U podzemnom nivou projektovane su stanarske ostave, podzemna garaža sa rampom, tehničke prostorije i PP prostorija sa nadpritiskom. Ovaj nivo je organizovan tako da stanarima obezbedi maksimalnu funkcionalnost, dodatni prostor za skladištenje i bezbedно parkiranje.

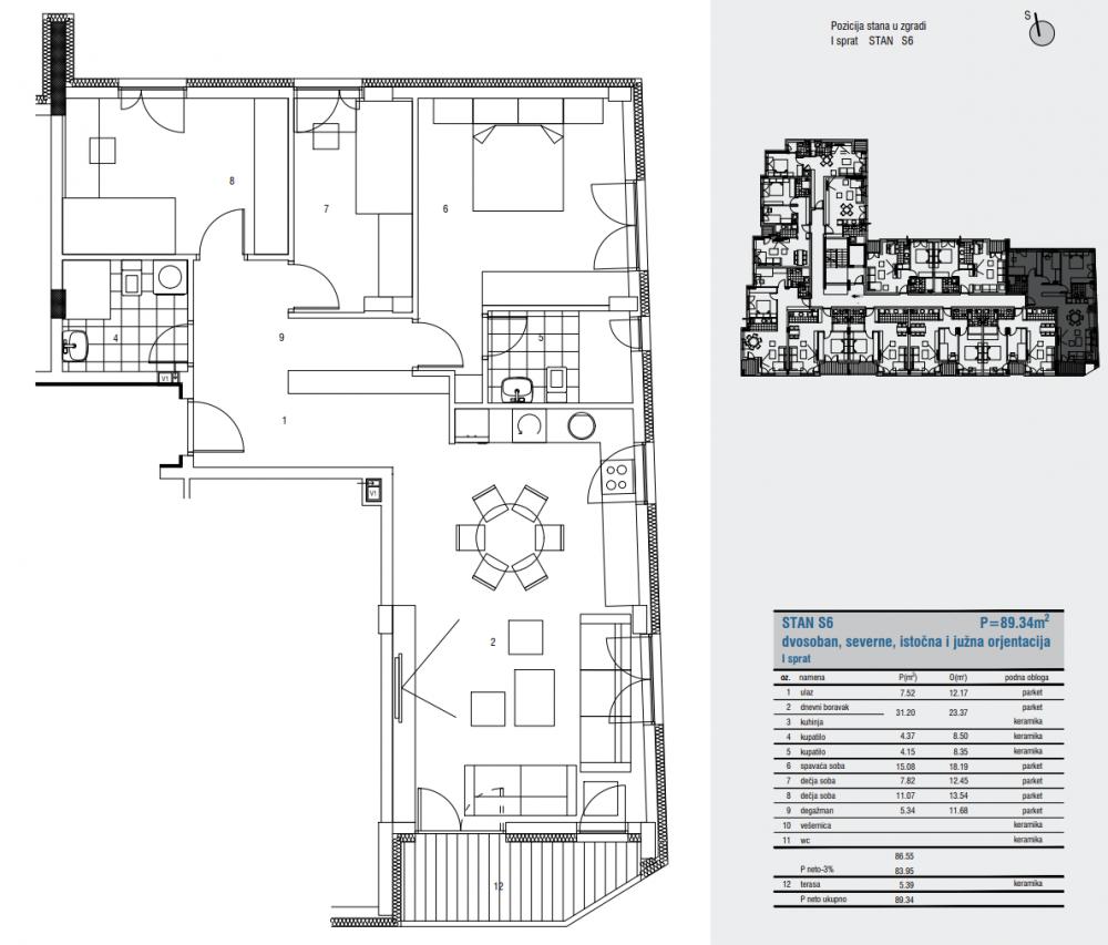
Prizemlje
U prizemlju se nalaze dva stana, dva poslovna prostora i glavni ulaz u objekat sa vetrobranom, liftom i stepeništem. Dodatno, deo prizemlja čine natkrivena i nenatkrivena parking mesta.

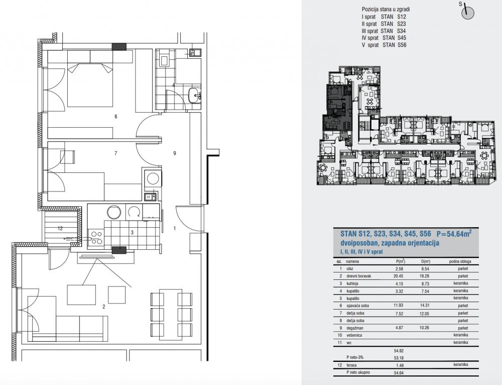
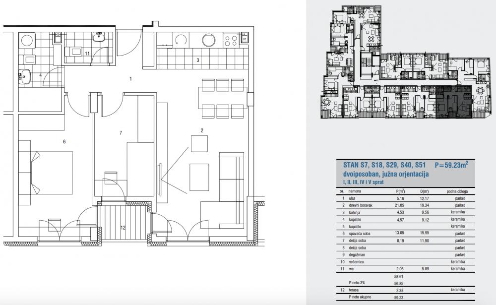
Spratovi (I–V)
Na svakom spratu projektovano je po 11 stambenih jedinica, različitih struktura i površina, odlično raspoređenih i projektovanih tako da zadovolje potrebe savremenog stanovanja.

Krov
Krov je projektovan kao ravan, neprohodan, delimično zeleni ekstenzivni krov, što doprinosi boljoj toplotnoj i zvučnoj izolaciji, kao i estetici objekta.

Parking i spoljašnje uređenje

Projektovan je ukupno 59 parking mesta, od čega:
– 29 u podzemnoj garaži
– 30 u prizemlju (otvoren i zatvoren deo)
– 4 mesta su predviđena za osobe sa invaliditetom

Zelene površine zauzimaju 25,43% parcele, od čega je više od 11% u direktnom kontaktu sa tlom, što ispunjava najviše standarde urbanističkog uređenja. Planirano je visoko zelenilo, travnate površine, dekorativno uređenje, kao i urbani mobilijar.

Kvalitet gradnje i materijali

Objekat je projektovan kao skeletni armirano-betonski sistem, sa AB pločama debljine 20 cm.
Fasadni zidovi su višeslojni sa termoizolacijom prema standardima energetske efikasnosti.
Posebna pažnja posvećena je zvučnoj izolaciji, posebno prema železničkom koridoru – kroz unapređene fasadne zidove, PVC stolariju sa visokim nivoom akustične zaštite i predviđene zaštitne barijere.

Unutrašnji podovi u stanovima predviđeni su za parket u boravku i spavaćim sobama, dok se u kupatilima i kuhinjama postavlja granitna keramika. Klime su planirane kroz inverter sistem grejanja i hlađenja, sa spoljnim jedinicama diskretno integrisanim iza maski.

Ovaj projekat predstavlja savremenu i funkcionalnu zgradu, idealnu za porodično stanovanje, investiciju ili poslovnu delatnost. Planovi su izrađeni u skladu sa važećim zakonima, energetskim propisima, protivpožarnim standardima i zahtevima akustičke zaštite.
Uz visok kvalitet gradnje, organizovan parking i moderno uređenje prostora, budući stanari dobijaju izuzetno komforan i dugoročno stabilan objekat.

CENA OD:
2.350 €/m²
BEZ PROVIZIJE ZA KUPCE!

Završetak radova: Juna 2026.


Podelite link projekta sa prijateljima
Kopiraj link

Dostupnost parkinga i garaže

Na upit

Na upit


Modeli plaćanja prilikom kupovine stana

Plaćanje na rate

Po dogovoru. Kontaktirajte naš prodajni tim na broj: 018 310 44 55

Plaćanje u kešu

Na upit

Plaćanje preko kredita

Na upit

5.695
stambene površine
57
slobodnih stanova
Po+P+5

Slike projekta novogradnje

Broj slika u galeriji: 1
Pozovite naš prodajni tim za sve informacije
018 310 44 55

Ponuda stanova na prodaju

Cena po kvadratu iznosi 2.350-2.450 € za manje stanove, dok je za stanove preko 80 kvadrata niža. Oglašena je cena sa PDV-om, za kupce prvog stana moguć povraćaj PDV-a. Kupovina direktno od investitora.
Lift u zgradi
Prilaz za invalide
Inverter sistem grejanja i hlađenja

Benefiti zgrade

Višeslojni fasadni zidovi sa termoizolacijom
Kvalitetna zvučna izolacija
Zelene površine zauzimaju 25,43% parcele
Unutrašnji podovi u stanovima predviđeni su za parket
Visoka energetska efikasnost

Opremljenost stanova

Klima uređaj sa spoljnim jedinicama diskretno integrisanim iza maski
PVC stolarija sa visokim nivom akustične zaštite
Granitna keramika u kuhinji i kupatilu

Važni objekti u blizini zgrade

5-10 minuta pešaka od Pravnog i Ekonomskog fakulteta
Par minuta pešaka do Umetničkog fakulteta
Par minuta pešaka do glavne autobuske stanice
Pozovite naš prodajni tim za sve informacije
018 310 44 55

Kontaktirajte prodajni tim

Ostavite kontakt podatke i zakazaćemo sastanak. Javićemo vam se u najkraćem mogućem roku.

Pošaljite upit