Oglas StanoviNiš-10171

U blziini Pravnog i fakulteta Umetnosti, Troiposoban stan na prodaju, 87.69m2, 197.302€

Šifra oglasa: StanoviNiš-10171
Niš, Medijana, Niš centar - U blziini Pravnog i fakulteta Umetnosti
Prodaja troiposobnog stana, U blziini Pravnog i fakulteta Umetnosti Niš, terasa, lift

197.302 €

2.267,84 €/m2

Klikni da pozoveš ili pošalješ poruku
Kontakt telefon
018 310 44 55

Kliknite i ostavite kontakt kako biste saznali kako ovaj stan možete kupiti uz pomoć stambenog kredita:

Ovaj oglas je deo projekta:
Slika projekta Stambeno-poslоvni kompleks odličnog kvaliteta u centru
Pogledaj projekat:

Cena:
Šifra oglasa:
Kvadratura:
Tip objekta:
Stanje objekta:
Struktura:
Sprat:
Način grejanja:
Uknjiženost:
Dodatno:
197.302 €
StanoviNiš-10171
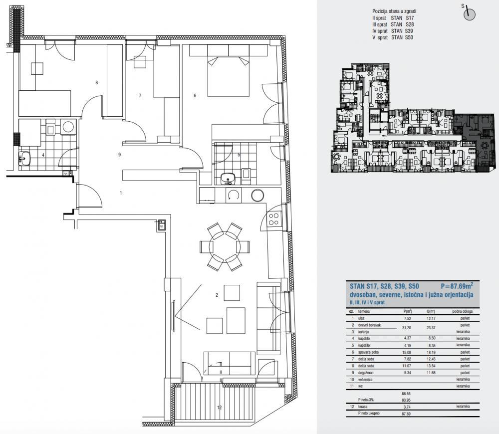
87.69 m2
Stan
U izgradnji
3.5
2/5
Električno
U izgradnji
Terasa, lift
Oglas ažuriran: 26.11.2025 (19:14)
Oglas proveren: 03.12.2025 (09:02)

Opis oglasa:
Šifra oglasa:
StanoviNiš-10171
Na prodaju troiposoban stan u savremenom stambeno-poslovnom kompleksu u strogom centru Niša koji je projektovan prema visokim standardima gradnje, komfora i energetske efikasnosti. Objekat je planiran kao Po+P+5 i predstavlja odlično rešenu arhitektonsku celinu sa funkcionalnim rasporedima stanova, poslovnim prostorima i organizovanim parkingom.

Stan se nalazi u modernoj zgradi Izuzetnog kvaliteta — sa odabranim materijalima, odličnom izolacijom и pažljivo projektovanom konstrukcijom. Cena je iskazana sa PDV-om, a kupcima prvog stana omogućen je povraćaj PDV-a. Kupovina se vrši direktno od investitora.

Struktura objekta
U podrumskom nivou nalaze se prostorije koje značajno doprinose komforu stanara — ostave za stanove, podzemna garaža sa rampom, tehničke prostorije i protivpožarna prostorija sa nadpritiskom.
Prizemlje čine dva stana, dva poslovna prostora, glavni ulaz sa vetrobranom, kao i deo natkrivenih i nenatkrivenih parking mesta.

Na svakom od pet stambenih spratova nalazi se po 11 stanova različitih veličina i struktura, a krov je ravan, neprohodan, delimično izveden kao zeleni krov radi poboljšane izolacije и estetike.

Parking i spoljašnje uređenje
Kompleks ima ukupno 59 parking mesta: 29 u podzemnoj garaži i 30 u prizemlju, dok su 4 posebno prilagođena osobama sa invaliditetom. Spoljašnje uređenje obuhvata više od 25% zelenih površina, uključujući travnate površine, sadnice visokog zelenila, dekorativno uređenje i urbani mobilijar — sve u skladu sa visokim urbanističkim standardima.

Kvalitet gradnje i materijala
Objekat je izveden kao armirano-betonski skeletni sistem sa pločama debljine 20 cm, uz višeslojne fasadne zidove koji obezbeđuju odličnu termo- i zvučnu izolaciju. Poseban akcenat je stavljen na zaštitu od buke, naročito prema železničkom koridoru, kroz unapređene fasadne zidove i akustičnu PVC stolariju.

Unutrašnja obrada predviđa parket u boravnim i spavaćim prostorijama, dok se u kupatilima i kuhinjama ugrađuje granitna keram
Kontakt: 018 310 44 55
Adresa U blziini Pravnog i fakulteta Umetnosti
Klikni da pozoveš ili pošalješ poruku
Kontakt telefon
018 310 44 55
Prijavi grešku u oglasu
Zakaži gledanje stana
Zakaži gledanje stana
Pitaj oglašivača
Selektuj šta te interesuje:
Pošalji pitanje

Podeli stan sa prijateljima
Kopiraj link

Kontaktiraj oglašivača


Slični oglasi: