Oglas StanoviNiš-376166

Marger, Trosoban stan na prodaju, 66.66m2, 190.648€

Šifra oglasa: StanoviNiš-376166
Niš, Medijana, Niš centar - Marger
Stan u zgradi, novogradnja, etažno grejanje, oglas ID StanoviNiš-376166

190.648 €

2.888,61 €/m2

Klikni da pozoveš ili pošalješ poruku
Kontakt telefon
065 531 12 00

Kliknite i ostavite kontakt kako biste saznali kako ovaj stan možete kupiti uz pomoć stambenog kredita:

Cena:
Šifra oglasa:
Kvadratura:
Tip objekta:
Stanje objekta:
Struktura:
Sprat:
Način grejanja:
Uknjiženost:
Dodatno:
190.648 €
StanoviNiš-376166
66.66 m2
Stan
U izgradnji
3.0
1/8
Etažno
U izgradnji
Terasa, lift
Oglas ažuriran: 25.03.2026 (09:25)
Oglas proveren: 01.05.2026 (21:25)

Opis oglasa:
Šifra oglasa:
StanoviNiš-376166
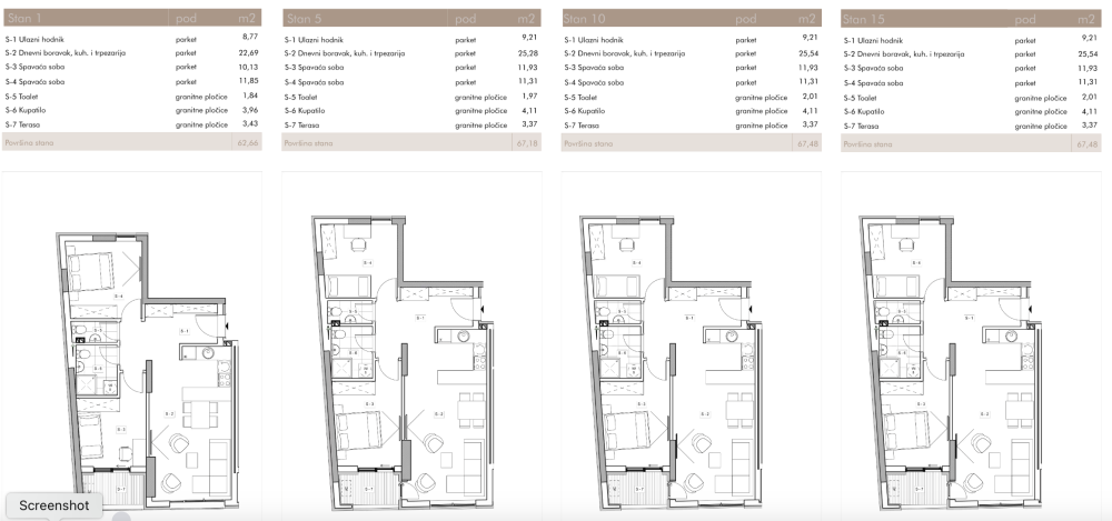
Na prodaju trosoban stan u luksuznoj zgradi koja se gradi u strogom centru Niša, na jednoj od najatraktivnijih lokacija u gradu (Marger). Objekat kombinuje vrhunski kvalitet gradnje, moderan dizajn i visoku energetsku efikasnost, pružajući idealan balans između udobnosti, prestiža i savremene tehnologije. Dostupan je na više spratova, ovaj tip stana ima i sa drugim kvadraturama koje se razlikuju za nekoliko kvadrata.

Zgrada je projektovana po najvišim standardima savremene gradnje – unutrašnji zidovi izrađeni su od opekarskih energetskih blokova debljine 12 cm, dok zidovi između stanova imaju debljinu od 25 cm, što obezbeđuje vrhunsku zvučnu izolaciju i potpunu privatnost. Spoljašnji zidovi su termoizolovani slojem od 12–15 cm, čime objekat dostiže energetski najefikasniji nivo stanovanja.

Unutrašnjost stanova odlikuje pažljivo biran materijal i besprekorna završna obrada:
podovi su izvedeni kao plivajući sa dodatnom zvučnom izolacijom, u dnevnoj sobi i spavaćim sobama postavljen je višeslojni parket, dok su kupatila i terase obložene granitnom keramikom. Zgrada je opremljena aluminijumskom spoljašnjom stolarijom i poseduje automatizovan pametni sistem kojim se može upravljati putem mobilnog uređaja što omogućava savremeno, udobno i energetski efikasno stanovanje.

Zgrada će biti useljiva sredinom 2027.

Ovaj stan je deo ekskluzivnog projekta koji donosi potpuno novi standard života u centru Niša - elegantan, funkcionalan i tehnološki napredan dom na prestižnoj lokaciji.

Cena je direktno od investitora, sa uračunatim PDV-om, a kupci prvog stana ostvaruju pravo na povraćaj PDV-a u skladu sa zakonom.
Kontakt: 065 531 12 00
Adresa Marger
Klikni da pozoveš ili pošalješ poruku
Kontakt telefon
065 531 12 00
Prijavi grešku u oglasu
Zakaži gledanje stana
Zakaži gledanje stana
Pitaj oglašivača
Selektuj šta te interesuje:
Pošalji pitanje

Podeli stan sa prijateljima
Kopiraj link

Kontaktiraj oglašivača


Slični oglasi: