Oglas StanoviNiš-378807

Troiposoban stan na prodaju, 87.69m2, 197.302€

Šifra oglasa: StanoviNiš-378807
Niš, Medijana, Niš centar
Komforan novi stan sa prelepim pogledom na kej

197.302 €

2.267,84 €/m2

Klikni da pozoveš ili pošalješ poruku
Kontakt telefon
065 531 12 00

Kliknite i ostavite kontakt kako biste saznali kako ovaj stan možete kupiti uz pomoć stambenog kredita:

Cena:
Šifra oglasa:
Kvadratura:
Tip objekta:
Stanje objekta:
Struktura:
Sprat:
Način grejanja:
Uknjiženost:
Dodatno:
197.302 €
StanoviNiš-378807
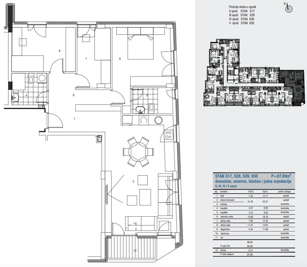
87.69 m2
Stan
U izgradnji
3.5
2/5
Električno
U izgradnji
Terasa, lift
Oglas ažuriran: 27.01.2026 (21:25)
Oglas proveren: 04.02.2026 (17:25)

Opis oglasa:
Šifra oglasa:
StanoviNiš-378807
Na prodaju troiposoban stan u savremenom stambeno-poslovnom kompleksu u strogom centru Niša koji je projektovan prema visokim standardima gradnje, komfora i energetske efikasnosti. Objekat je planiran kao Po+P+5 i predstavlja odlično rešenu arhitektonsku celinu sa funkcionalnim rasporedima stanova, poslovnim prostorima i organizovanim parkingom. Dostupan je na više spratova.

Stan se nalazi u modernoj zgradi Izuzetnog kvaliteta — sa odabranim materijalima, odličnom izolacijom и pažljivo projektovanom konstrukcijom. Cena je iskazana sa PDV-om, a kupcima prvog stana omogućen je povraćaj PDV-a. Kupovina se vrši direktno od investitora.

Struktura objekta
U podrumskom nivou nalaze se prostorije koje značajno doprinose komforu stanara — ostave za stanove, podzemna garaža sa rampom, tehničke prostorije i protivpožarna prostorija sa nadpritiskom.
Prizemlje čine dva stana, dva poslovna prostora, glavni ulaz sa vetrobranom, kao i deo natkrivenih i nenatkrivenih parking mesta.

Na svakom od pet stambenih spratova nalazi se po 11 stanova različitih veličina i struktura, a krov je ravan, neprohodan, delimično izveden kao zeleni krov radi poboljšane izolacije и estetike.

Parking i spoljašnje uređenje
Kompleks ima ukupno 59 parking mesta: 29 u podzemnoj garaži i 30 u prizemlju, dok su 4 posebno prilagođena osobama sa invaliditetom. Spoljašnje uređenje obuhvata više od 25% zelenih površina, uključujući travnate površine, sadnice visokog zelenila, dekorativno uređenje i urbani mobilijar — sve u skladu sa visokim urbanističkim standardima.

Kvalitet gradnje i materijala
Objekat je izveden kao armirano-betonski skeletni sistem sa pločama debljine 20 cm, uz višeslojne fasadne zidove koji obezbeđuju odličnu termo- i zvučnu izolaciju. Poseban akcenat je stavljen na zaštitu od buke, naročito prema železni&
Kontakt: 065 531 12 00
Klikni da pozoveš ili pošalješ poruku
Kontakt telefon
065 531 12 00
Prijavi grešku u oglasu
Zakaži gledanje stana
Zakaži gledanje stana
Pitaj oglašivača
Selektuj šta te interesuje:
Pošalji pitanje

Podeli stan sa prijateljima
Kopiraj link

Kontaktiraj oglašivača


Slični oglasi: