Četvorosoban stan na prodaju, 80m2, 136.000€

Šifra oglasa: StanoviNiš-6300
Niš, Medijana, Bulevar Nemanjića
Jedinstvena ponuda-pravi porodičan stan na najatraktivnijoj lokaciji kod Delte ID#StanoviNiš-6300

136.000 €

1.700,00 €/m2

Klikni da pozoveš ili pošalješ poruku
Kontakt telefon
018 310 52 66

Kliknite i ostavite kontakt kako biste saznali kako ovaj stan možete kupiti uz pomoć stambenog kredita:

Cena:
Šifra oglasa:
Kvadratura:
Tip objekta:
Stanje objekta:
Struktura:
Sprat:
Način grejanja:
Uknjiženost:
Dodatno:
136.000 €
StanoviNiš-6300
80 m2
Stan
Izvorno
4.0
9
Centralno
Uknjiženo
Lift
Oglas ažuriran: 08.04.2025 (13:24)
Oglas proveren: 24.11.2025 (13:25)

Opis oglasa:
Šifra oglasa:
StanoviNiš-6300
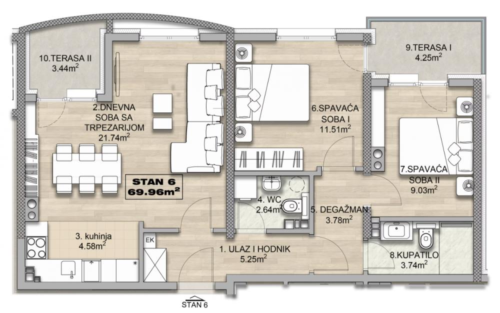
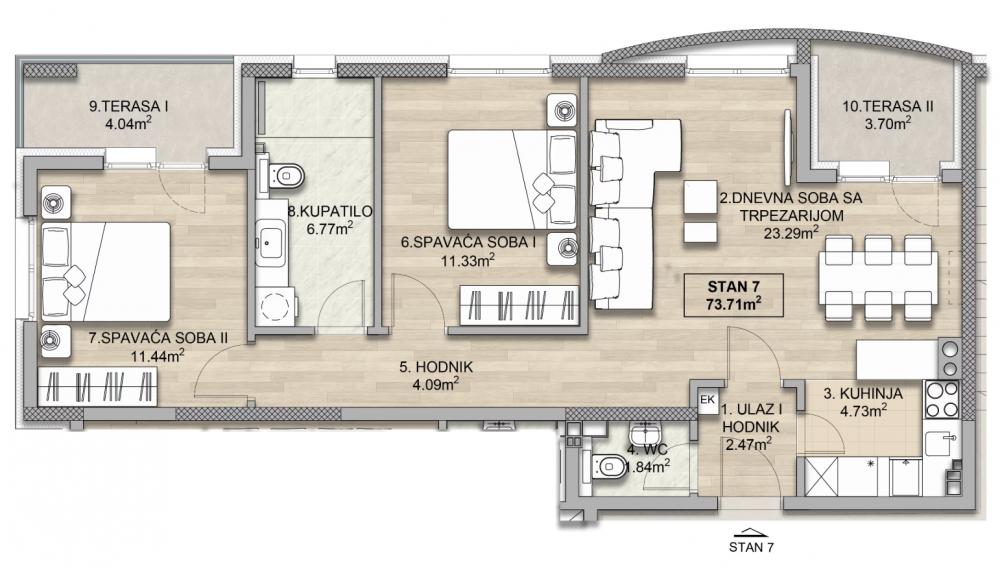
Ako Vam treba veliki, komforni stan za Vašu porodicu onda obavezno pogledajte ovu ponudu. Prodaje se četvorosoban stan u starijoj zgradi kvalitetne gradnje na jednoj od najtraženijih lokacija kod Delte. Površine je 74m2+6m2 lođa, nalazi se na IX spratu (nije poslednji sprat) stambene zgrade sa dva lifta. Stan je veoma funkcionalan sa odličnim rasporedom u kome će svaki član porodice imati kutak za sebe. Čine ga: hodnik, dnevni boravak sa izdvojenom trpezarijom, kuhinja, tri spavaće sobe, kupatilo, toalet, lođa i terasa. Stan je očuvan i u izvornom stanju, grejanje je centralno a sama orijentisanost stana je takva da je dobro osvetljen i topao. Uz stan se dobija i pripadajuća podrumska prostorija, oko zgrade je parking. Nalazi se u blizini škole, vrtića, parka...Ne propustite ovu jedinstvenu priliku da postanete vlasnik stana sa odličnom lokacijom i velikim potencijalom! Hvala Vam što ste pogledali oglas. Za više informacija o ovoj ili drugim nekretninama i zakazivanje razgledanja kontaktirajte agenta na broj telefona iz oglasa (poziv, sms, viber) ili putem e-maila. Kompletnu ponudu dostupnih nekretnina možete pronaći na našem sajtu. Agencija Proagent nekretnine je upisana u Registru posrednika pod brojem: 940.
Kontakt: 018 310 52 66
Klikni da pozoveš ili pošalješ poruku
Kontakt telefon
018 310 52 66
Prijavi grešku u oglasu
Zakaži gledanje stana
Zakaži gledanje stana
Pitaj oglašivača
Selektuj šta te interesuje:
Pošalji pitanje

Podeli stan sa prijateljima
Kopiraj link

Kontaktiraj oglašivača
Proagent nekretnine - profilna slika
Proagent nekretnine
Slični oglasi: