Oglas StanoviNiš-6934

Dvoiposoban stan na prodaju, 62m2, 147.290€

Šifra oglasa: StanoviNiš-6934
Niš, Medijana, Čair
Dvoiposoban stan u modernoj novogradnji sa povraćajem PDV-a na atraktivnoj lokaciji kod Čaira ID#StanoviNiš-6934

147.290 €

2.375,65 €/m2

Klikni da pozoveš ili pošalješ poruku
Kontakt telefon
018 310 52 67

Kliknite i ostavite kontakt kako biste saznali kako ovaj stan možete kupiti uz pomoć stambenog kredita:

Cena:
Šifra oglasa:
Kvadratura:
Tip objekta:
Stanje objekta:
Struktura:
Način grejanja:
Uknjiženost:
Dodatno:
147.290 €
StanoviNiš-6934
62 m2
Stan
Izvorno
2.5
Etažno
Nije uknjiženo
Lift
Oglas ažuriran: 26.08.2025 (10:54)
Oglas proveren: 24.12.2025 (04:25)

Opis oglasa:
Šifra oglasa:
StanoviNiš-6934
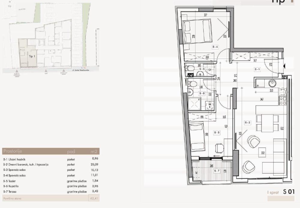
U ponudi je moderno dizajnirana novogradnja na odličnoj lokaciji kod Čaira, zgrada je spratnosti P+8 sa liftom. Prodaje se dvoiposoban stan površine 62,41m2, sastoji se iz ulaznog hodnika, dnevnog boravka sa kuhinjom i trpezarijom, dve spavaće sobe, kupatila i terase. Stanovi su projektovatni tako da kupcima pružaju ugodnost i udobnost. U gradnji se koriste najkvalitetniji materijali: fasada je izvedena u višeslojnom sistemu sa zidovima od energetskog bloka debljine 25 cm i završnom obradom tipa „Demit“, kao termika u sistemu koristi kamena vuna u debljini od 10 cm, unutrašnja stolarija, sobna vrata, izrađena od visokokvalitetnog furnira kao završnice sa tvrdom ispunom (iverica), spoljna stolarija je od aluminijum, podovi su izvedeni kao plivajući sa ugrađenom zvučnom izolacijom, biće postavljen višeslojni parket, u kupatilu i na terasi biće postavljena granitna keramika, odovi garaže: završna obrada od ferobetona, sanitarija i galanterija: usponski tuš, linijski slivnik, ugradni geberit, klonzolna WC šolja, stakleni paravan, lavabo sa ormarićem - konzolni. Projektovano je ukupno 36 parking mesta, uključujući: podzemnu garažu sa 18 parking mesta, kojoj se pristupa rampom i i 18 parking mesta na otvorenom delu dvorišta. U cenu je uključen PDV i kupci prvog stana imaju pravo na povraćaj PDV-a u iznosu od 10%.Za više informacija o ovoj ili drugim nekretninama i zakazivanje razgledanja kontaktirajte agenta na broj telefona iz oglasa (poziv, sms, viber) ili putem e-maila. Kompletnu ponudu dostupnih nekretnina možete pronaći na našem sajtu. Agencija Proagent nekretnine je upisana u Registru posrednika pod brojem: 940.
Kontakt: 018 310 52 67
Klikni da pozoveš ili pošalješ poruku
Kontakt telefon
018 310 52 67
Prijavi grešku u oglasu
Zakaži gledanje stana
Zakaži gledanje stana
Pitaj oglašivača
Selektuj šta te interesuje:
Pošalji pitanje

Podeli stan sa prijateljima
Kopiraj link

Kontaktiraj oglašivača


Slični oglasi: