Oglas StanoviNiš-p-014858

Cetinjska, Dvoiposoban stan na prodaju, 59m2, 142.155€

Šifra oglasa: StanoviNiš-p-014858
Niš, Crveni Krst, Čamurlija - Cetinjska
Stan u zgradi, novogradnja, etažno grejanje, oglas ID StanoviNiš-p-014858

142.155 €

2.409,41 €/m2

Klikni da pozoveš ili pošalješ poruku
Kontakt telefon
018 310 61 53

Kliknite i ostavite kontakt kako biste saznali kako ovaj stan možete kupiti uz pomoć stambenog kredita:

Cena:
Šifra oglasa:
Kvadratura:
Tip objekta:
Stanje objekta:
Struktura:
Sprat:
Način grejanja:
Uknjiženost:
Dodatno:
142.155 €
StanoviNiš-p-014858
59 m2
Stan
Izvorno
2.5
pr/5
Etažno
Nije uknjiženo
Terasa, lift
Oglas ažuriran: 03.10.2025 (16:55)
Oglas proveren: 19.10.2025 (11:25)

Opis oglasa:
Šifra oglasa:
StanoviNiš-p-014858
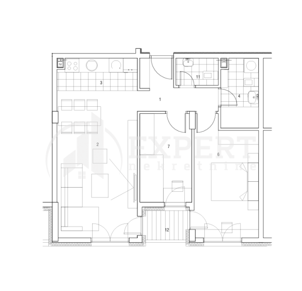
U neposrednoj blizini fakulteta, u mirnom i centralnom delu grada, nalazi se stambeni objekat projektovan da obezbedi maksimalnu udobnost i kvalitet stanovanja. Stan se nalazi na prvom spratu modernog stambenog objekta sa liftom. Orijentacija stana je južna. Sturuktura je dvoiposobna. Stan se sastoji od ulazng hodnika, kupatila, spavaće sobe, dečije sobe i prostranog višenameskog prosotra gde je dnevna soba kuhinja, trepezarija i izlaz na terasu, na koju se izlazi iz veće spavaće sobe. Stolarija je sa sedmokomornim PVC profilima i troslojnim staklom, roletne sa električnim podizačima, etažno grejanje i inverter klima uređaji, na podu je parket prve klase, granitne tuš kade, svaki stan ima sopstveni vodomer. Rok završetka je oktobar 2026g. Za kupce prve nekretnine moguć je povrat PDV-a. Moguća kupovina putem stambenog kredita.
Kontakt: 018 310 61 53
Adresa Cetinjska
Klikni da pozoveš ili pošalješ poruku
Kontakt telefon
018 310 61 53
Prijavi grešku u oglasu
Zakaži gledanje stana
Zakaži gledanje stana
Pitaj oglašivača
Selektuj šta te interesuje:
Pošalji pitanje

Podeli stan sa prijateljima
Kopiraj link

Kontaktiraj oglašivača


Slični oglasi: