Oglas StanoviNiš-p-014956

Rajićeva, Dvoiposoban stan na prodaju, 62m2, 159.770€

Šifra oglasa: StanoviNiš-p-014956
Niš, Medijana, Niš centar - Rajićeva
Stan u zgradi, novogradnja, uknjižen, etažno grejanje, oglas ID StanoviNiš-p-014956

159.770 €

2.576,94 €/m2

Klikni da pozoveš ili pošalješ poruku
Kontakt telefon
018 310 61 53

Kliknite i ostavite kontakt kako biste saznali kako ovaj stan možete kupiti uz pomoć stambenog kredita:

Cena:
Šifra oglasa:
Kvadratura:
Tip objekta:
Stanje objekta:
Struktura:
Sprat:
Način grejanja:
Uknjiženost:
Dodatno:
159.770 €
StanoviNiš-p-014956
62 m2
Stan
Izvorno
2.5
1/8
Etažno
Uknjiženo
Terasa, parking, lift
Oglas ažuriran: 15.10.2025 (08:00)
Oglas proveren: 24.12.2025 (09:25)

Opis oglasa:
Šifra oglasa:
StanoviNiš-p-014956
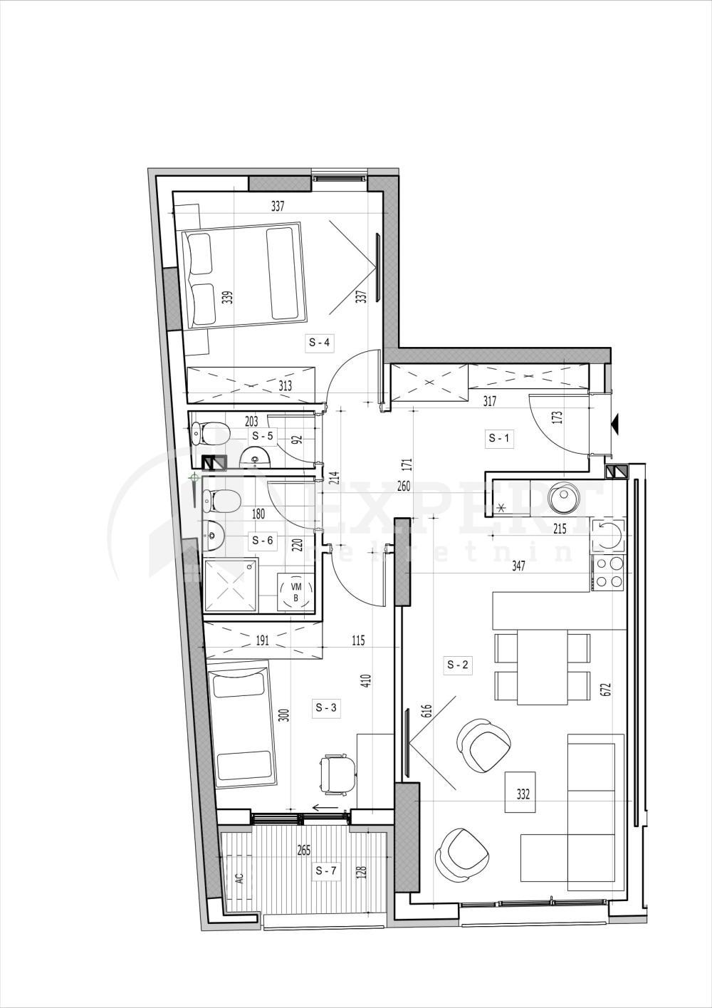
Na prodaju ekskluzivna novogradnja u centru. Stambeno poslovni objekat Po+P+8. Stan je projektovane površine 62,41m2. Nalazi se na prvom spratu, čine ga ulazni hodnik, dnevna soba sa trpezarijom i kuhinjom, dve spavaće sobe, toalet, kupatilo i terasa. Svaka stambena jedinica ima nezavisan sistem grejanja i hlađenja koji je automatizovan i moguće ga je kontrolisati putem mobilnog uređaja. Sistem za grejanje je postavljen kroz pod sa elektro-kotlom, dok je rashladni sistem sa invertor klimama. Svi podovi izvedeni su kao plivajući sa ugrađenom zvučnom izolacijom. Na podu je višelojni parket, a u kupatilu granitna keramika.Unutrašnja stolarija izrađena je od visoko kvalitetnog furnira, dok je spoljna stolarija od aluminijuma. Predviđeni rok završetka je jun 2027. godine. Za kupce prvog stana postoji mogućnost povratka PDV-a. Postoji mogućnost kupovine parking mesta. Ovo je samo deo naše ponude, za više informacija stojimo Vam na raspolaganju.
Kontakt: 018 310 61 53
Adresa Rajićeva
Klikni da pozoveš ili pošalješ poruku
Kontakt telefon
018 310 61 53
Prijavi grešku u oglasu
Zakaži gledanje stana
Zakaži gledanje stana
Pitaj oglašivača
Selektuj šta te interesuje:
Pošalji pitanje

Podeli stan sa prijateljima
Kopiraj link

Kontaktiraj oglašivača


Slični oglasi: