U centru, Stan na prodaju, 104.16m2, 260.000€

Šifra oglasa: StanoviNiš-9805
Niš, Medijana, Niš centar - U centru
Prodaja stana, U centru Niš, terasa, lift

260.000 €

2.500,00 €/m2

Klikni da pozoveš ili pošalješ poruku
Kontakt telefon
018 310 44 55

Kliknite i ostavite kontakt kako biste saznali kako ovaj stan možete kupiti uz pomoć stambenog kredita:

Ovaj oglas je deo projekta:
Slika projekta Stambeno-poslovni objekat u centru Niša sa 7 spratova
Pogledaj projekat:

Cena:
Šifra oglasa:
Kvadratura:
Tip objekta:
Stanje objekta:
Struktura:
Sprat:
Način grejanja:
Uknjiženost:
Dodatno:
260.000 €
StanoviNiš-9805
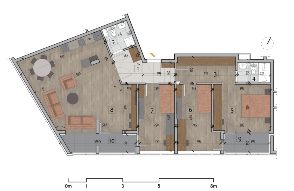
104.16 m2
Stan
U izgradnji
-
4/7
Etažno
U izgradnji
Terasa, lift
Oglas ažuriran: 29.10.2025 (09:17)
Oglas proveren: 18.12.2025 (00:31)

Opis oglasa:
Šifra oglasa:
StanoviNiš-9805
Na prodaju je četvorosoban stan u novogradnji, smešten u samom centru Niša, na jednoj od najtraženijih lokacija u gradu. Stan se nalazi u modernoj zgradi koja spaja savremeni dizajn, kvalitetnu gradnju i praktičan raspored prostora, idealan za udoban gradski život.

Cena je ista kao kod investitora, u cenu je uračunat PDV, a kupci prvog stana ostvaruju pravo na povraćaj 10% PDV-a.

Dostupan je na više spratova.

U izgradnji su korišćeni materijali visokog kvaliteta – termoizolacija sa fasadom od kombinacije Alubonda i demita, nemačka PVC stolarija Aluplast sa četvorosezonskim staklima koja pružaju odličnu toplotnu i zvučnu izolaciju, kao i Tarkett parket i granitna keramika u kuhinji, kupatilu i hodniku.

Zgrada ima lift, a grejanje je etažno, što omogućava potpunu kontrolu komfora i troškova. Svaki stan poseduje terasu, a uz doplatu je moguće obezbediti parking mesto u podzemnoj garaži.

Savršen izbor za one koji žele moderan, kvalitetan i funkcionalan dom u samom srcu Niša.
Kontakt: 018 310 44 55
Adresa U centru
Klikni da pozoveš ili pošalješ poruku
Kontakt telefon
018 310 44 55
Prijavi grešku u oglasu
Zakaži gledanje stana
Zakaži gledanje stana
Pitaj oglašivača
Selektuj šta te interesuje:
Pošalji pitanje

Podeli stan sa prijateljima
Kopiraj link

Kontaktiraj oglašivača

Povezane pretrage:

Slični oglasi: