Strogi centar, Marger, Trosoban stan na prodaju, 67.48m2, 189.620€

Šifra oglasa: StanoviNiš-9944
Niš, Medijana, Niš centar - Strogi centar, Marger
Prodaja trosobnog stana, Strogi centar, Marger Niš, terasa, lift

189.620 €

2.830,15 €/m2

Klikni da pozoveš ili pošalješ poruku
Kontakt telefon
018 310 44 55

Kliknite i ostavite kontakt kako biste saznali kako ovaj stan možete kupiti uz pomoć stambenog kredita:

Ovaj oglas je deo projekta:
Slika projekta Pametna zgrada u strogom centru Niša, na Margeru
Pogledaj projekat:

Cena:
Šifra oglasa:
Kvadratura:
Tip objekta:
Stanje objekta:
Struktura:
Način grejanja:
Uknjiženost:
Dodatno:
189.620 €
StanoviNiš-9944
67.48 m2
Stan
U izgradnji
3.0
Električno
U izgradnji
Terasa, lift
Oglas ažuriran: 20.02.2026 (17:09)
Oglas proveren: 23.02.2026 (02:27)

Opis oglasa:
Šifra oglasa:
StanoviNiš-9944
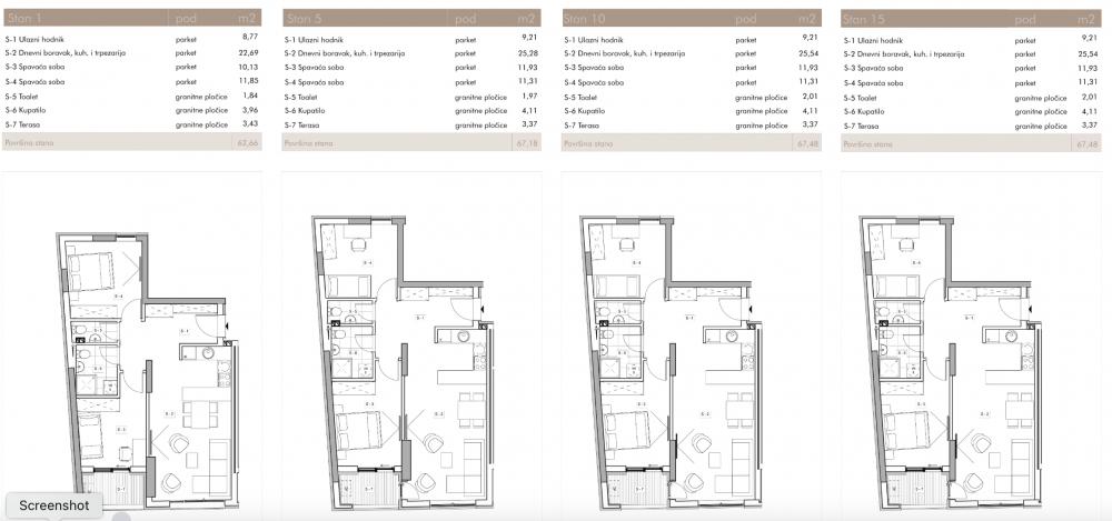
Na prodaju trosoban stan u luksuznoj zgradi koja se gradi u strogom centru Niša, na jednoj od najatraktivnijih lokacija u gradu (Marger). Objekat kombinuje vrhunski kvalitet gradnje, moderan dizajn i visoku energetsku efikasnost, pružajući idealan balans između udobnosti, prestiža i savremene tehnologije.

Stan je dostupan na više spratova, kvadrature ovog tipa stana u zgradi su: 66.66–67.48 m².
Zgrada će biti useljiva sredinom 2027.

Zgrada je projektovana po najvišim standardima savremene gradnje – unutrašnji zidovi izrađeni su od opekarskih energetskih blokova debljine 12 cm, dok zidovi između stanova imaju debljinu od 25 cm, što obezbeđuje vrhunsku zvučnu izolaciju i potpunu privatnost. Spoljašnji zidovi su termoizolovani slojem od 12–15 cm, čime objekat dostiže energetski najefikasniji nivo stanovanja.

Unutrašnjost stanova odlikuje pažljivo biran materijal i besprekorna završna obrada:
podovi su izvedeni kao plivajući sa dodatnom zvučnom izolacijom, u dnevnoj sobi i spavaćim sobama postavljen je višeslojni parket, dok su kupatila i terase obložene granitnom keramikom. Zgrada je opremljena aluminijumskom spoljašnjom stolarijom i poseduje automatizovan pametni sistem kojim se može upravljati putem mobilnog uređaja što omogućava savremeno, udobno i energetski efikasno stanovanje.

Ovaj stan je deo ekskluzivnog projekta koji donosi potpuno novi standard života u centru Niša - elegantan, funkcionalan i tehnološki napredan dom na prestižnoj lokaciji.

Cena je direktno od investitora, sa uračunatim PDV-om, a kupci prvog stana ostvaruju pravo na povraćaj PDV-a u skladu sa zakonom.
Kontakt: 018 310 44 55
Adresa Strogi centar, Marger
Klikni da pozoveš ili pošalješ poruku
Kontakt telefon
018 310 44 55
Prijavi grešku u oglasu
Zakaži gledanje stana
Zakaži gledanje stana
Pitaj oglašivača
Selektuj šta te interesuje:
Pošalji pitanje

Podeli stan sa prijateljima
Kopiraj link

Kontaktiraj oglašivača


Slični oglasi: